/
$609,900
158days on marketSold$600,000 · January 25, 2026
$609,900
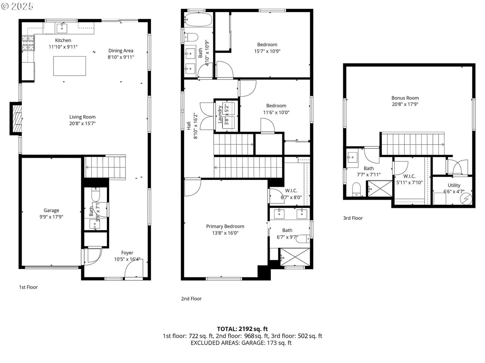
BOM after contingent sale failed. No fault of seller or home. Built in 2023, this stunning like new 4-bedroom, 3.5-bath home blends contemporary design, thoughtful upgrades, and an unbeatable location just blocks from Brentwood Park. Offering 2,135 square feet of stylish living space, this move-in-ready residence features an open-concept layout perfect for modern lifestyles. The bright and spacious kitchen showcases stainless steel appliances, ample storage, and a large island that connects seamlessly to the dining and living areas; ideal for entertaining or relaxing with family. Upstairs, the primary suite provides a peaceful retreat with a beautifully finished en-suite bath and generous closet space. Additional bedrooms offer flexibility for guests, a home office, or hobbies.Recent updates include new air conditioning and custom window coverings throughout, adding comfort and style. Enjoy a low-maintenance front yard and a well-designed floor plan that maximizes both space and natural light. Located in the desirable Brentwood-Darlington neighborhood, you’ll love the parks, schools, shops, and local dining favorites. Easy access to nearby Sellwood and Woodstock means weekend markets, coffee spots, and vibrant community amenities are just minutes away. Experience the perfect balance of modern living and Portland charm; this home truly has it all! [Home Energy Score = 5. HES Report at https://rpt.greenbuildingregistry.com/hes/OR10243280]
Extras & features
Dishwasher, Free-Standing Refrigerator, Microwave
Legal description
PARTITION PLAT 2021-23, LOT 3
Walk Score data provided by Walk Score®