$450,000
750 NE Cascadia Ridge DrEstacada, OR 97023
Status: EXP
3 beds · 3 baths · 1,508 SQFT
$450,000
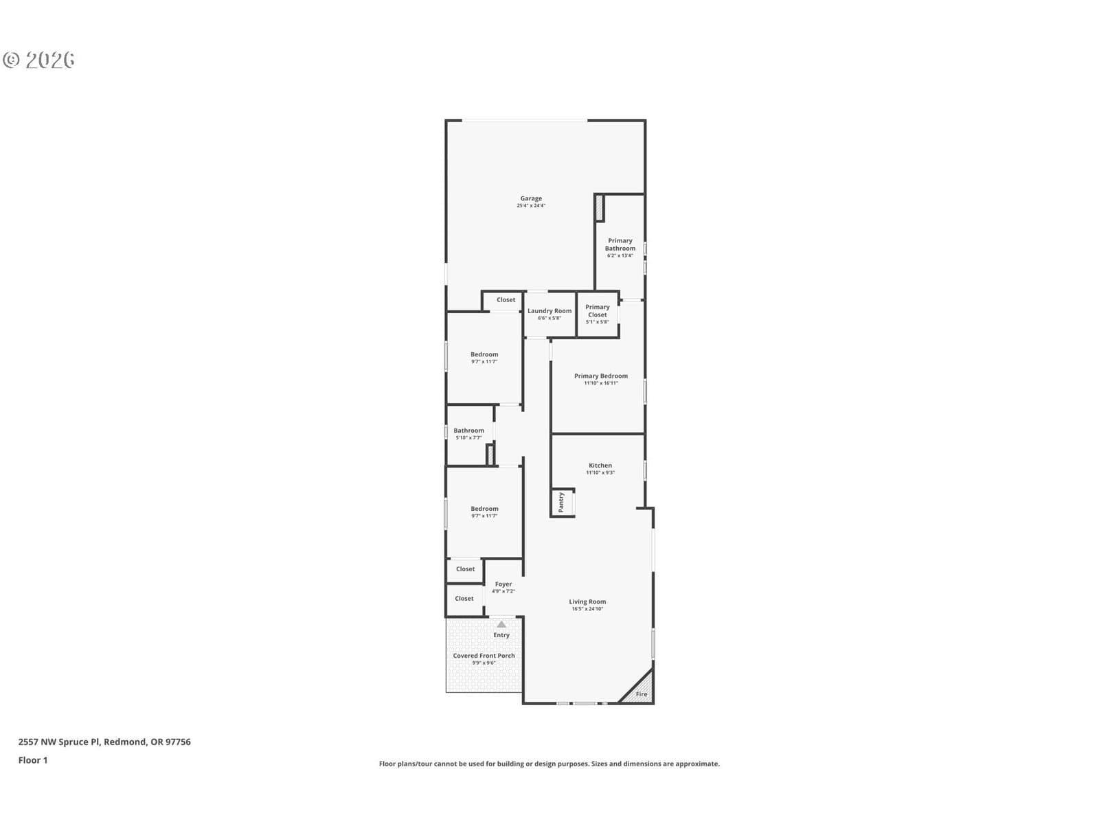
13days on marketPopular Durham floorplan by Hayden Homes with no HOA! This well-designed single-level home offers 3 bedrooms and 2 baths and features a bright living room with gas fireplace and lots of natural light. The kitchen is perfect for entertaining with quartz countertops, stainless steel appliances, good prep space, large pantry, convenient eat bar and adjacent dining space with sliders to the patio. The spacious primary suite includes a walk-in closet, dual vanity, and walk-in shower. Two additional bedrooms, full guest bath, and laundry room complete the layout. Tiled entry with built-in bench and walk-in coat closet adds both style and function. Enjoy central A/C, smart thermostat, and an oversized 2-car garage with extra storage. Relax on the covered front porch or in the fully fenced, low-maintenance yard with patio and multiple gates. Front yard includes sprinkler system. Prime location just half a block from a 4.5-acre park and under 5 miles to downtown Redmond, dining, shopping.
Extras & features
Washer, Dryer, Dishwasher, Disposal, Free-Standing Range, Microwave
Legal description
N/A
$450,000
750 NE Cascadia Ridge DrEstacada, OR 97023
Status: EXP
3 beds · 3 baths · 1,508 SQFT
$450,000
Walk Score data provided by Walk Score®