/
$375,000
85days on marketSold$380,000 · February 25, 2026
$375,000
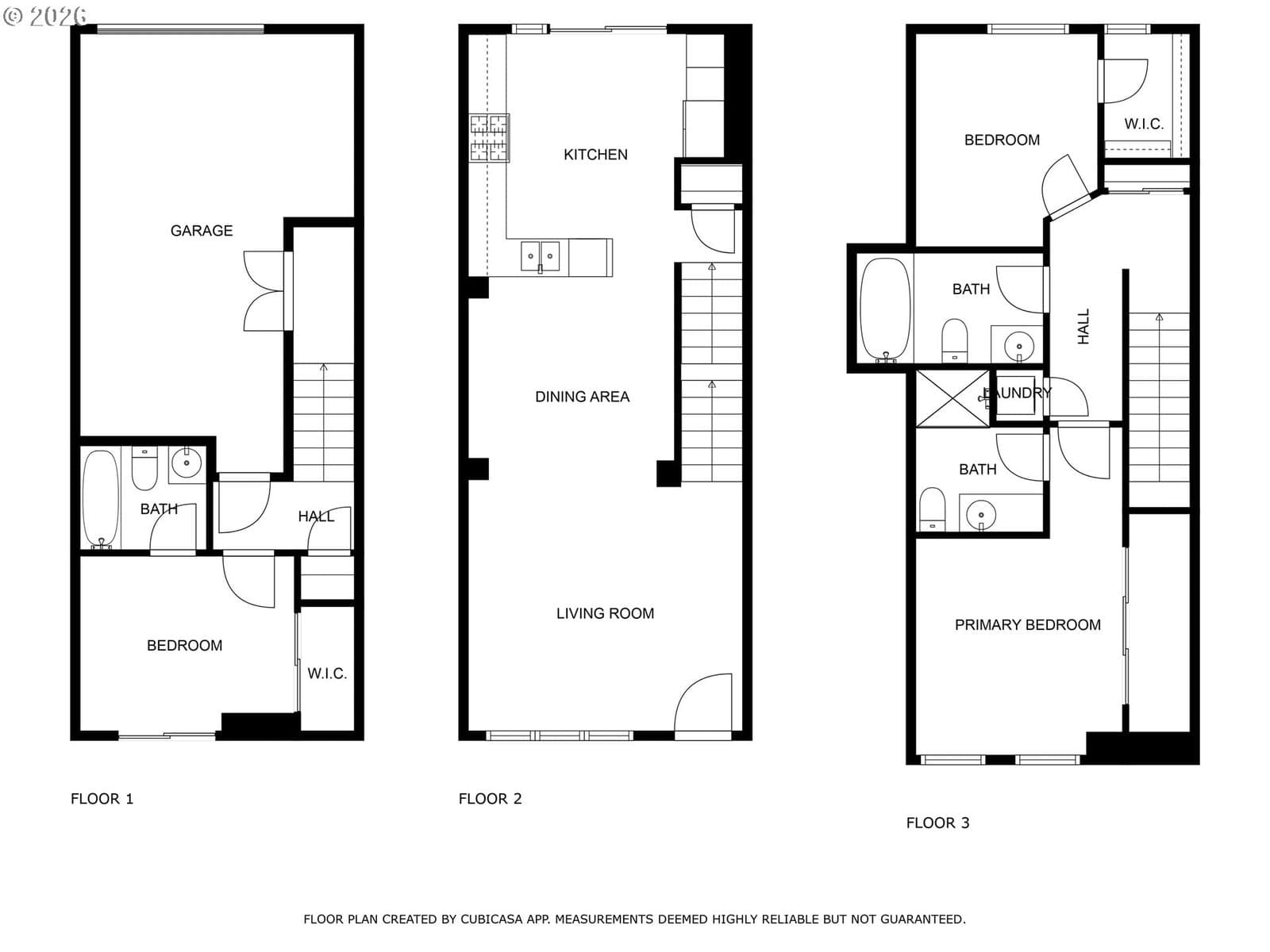
Don’t miss this striking 1,391 square foot brownstone in the heart of Villebois, offering timeless style and standout curb appeal. The classic brick exterior, soaring windows, and stunning Mt. Hood views from Mont Blanc St. make a memorable first impression. Inside, the layout is both flexible and functional with 3 bedrooms and 3 full bathrooms, including a ground-floor suite with its own private exterior entrance—ideal for guests, a home office, or multi-generational living. The open-concept main level features durable LVP flooring, a well-designed kitchen with pantry storage, and natural light.Enjoy a front patio for outdoor living, plus the convenience of an attached garage. HOA includes access to the Sparrow Creek pool, fitness and community center. Enjoy the Villebois marketplace, seasonal Farmer's Market, Brighten Montessori, local schools and parks. Explore the local Graham Oaks Nature Parks wildlife and trails. Low-maintenance living, classic brownstone architecture, and one of Wilsonville’s most sought-after neighborhoods—this home truly stands out. **Lender credit offered by preferred lender.**
Extras & features
Free-Standing Gas Range
Legal description
SUBDIVISION MONT BLANC 4557 LT 39
Building amenities
Walk Score data provided by Walk Score®