/
$499,000
12days on market$499,000
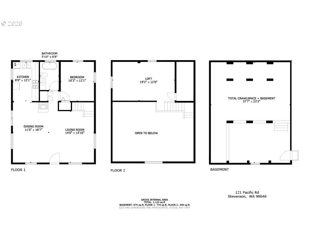
Slip away from the daily grind and unwind in your own forested retreat near Beacon Rock, nestled within the Columbia River Gorge along a romantic, winding road. This charming cabin features rustic wood cladding and a soaring vaulted ceiling that creates a bright, open living space filled with warmth and character. Expansive windows frame picturesque views of the surrounding forest and birdlife, seamlessly bringing nature indoors. Inside, there’s plenty of room to relax, along with a dining area perfect for enjoying hearty soups and crusty bread after long jaunts in the woods. The kitchen is well-equipped with newer wood cabinetry and modern conveniences such as a dishwasher and microwave. A delightful bathroom—with its classic clawfoot tub—invites you to soak and relax in comfort. While the main-level bedroom offers a cozy atmosphere with gorgeous green views. Upstairs, a spacious loft room benefits from the peaked ceiling, providing an airy, open retreat—ideal for guests, an office, room for kiddos, or a quiet hideaway. Outside, the generous newer wraparound wood deck is perfect for gathering with friends and family, sharing meals, and savoring the beauty of your surroundings. A serene pond adds to the magic, filling the air with the gentle sounds of nature. Ideally situated just 45 minutes from Portland and close to numerous trailheads, this newly renovated cabin sits roughly midway between Portland and Hood River within the National Scenic Area. Whether you're searching for a secluded sanctuary to live full time, a weekend escape, or a rustic hideaway to recharge, this enchanting cabin offers a truly special place to call your own.
Extras & features
Free-Standing Range, Free-Standing Refrigerator, Microwave
Legal description
see attached Exhibit A
Walk Score data provided by Walk Score®