/
$699,000
306days on marketSold$675,000 · February 11, 2026
$699,000
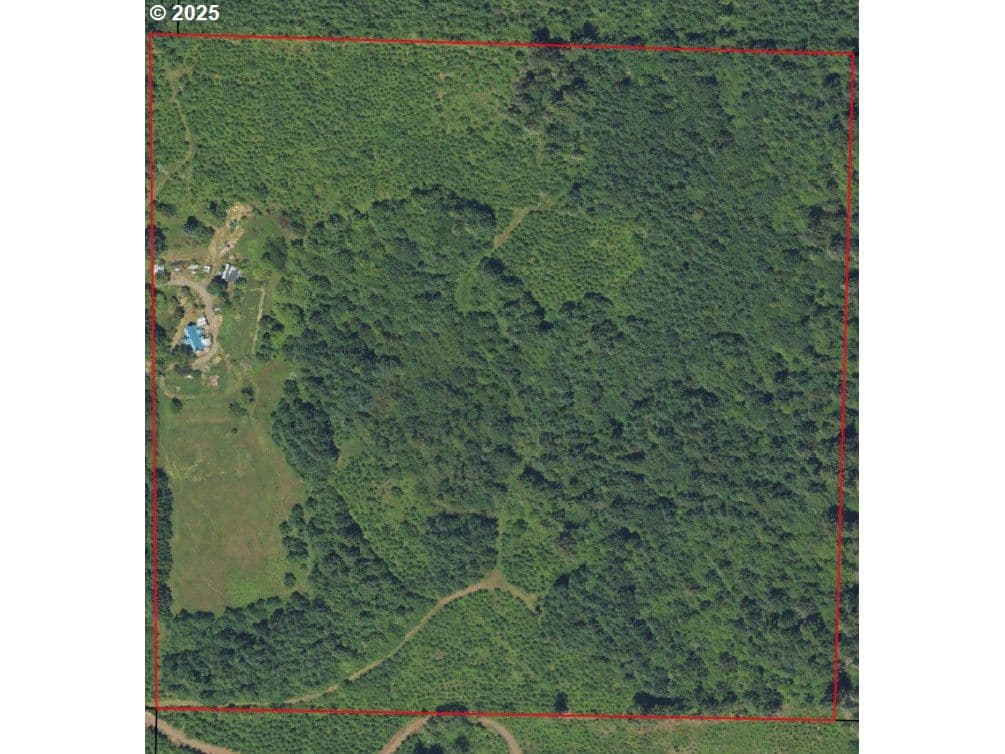
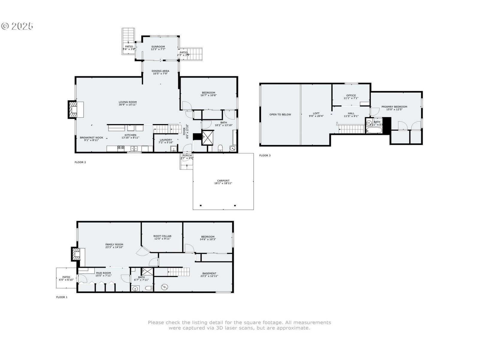
Ready for your own nature escape? This beautiful property located on 40 acres of Cascade timber is just minutes from Foster Lake. Wide open views of forestry and a lovely 1965 A-frame home ready for your personal touches. Tons of natural light with all the windows available at each level of the home. Natural springs located on the property with a small creek along the eastern border of the property line. This location offers the opportunity for quiet seclusion, potential timber investment, or weekend getaway short term rental! By appointment only! No drive bys!
Extras & features
Washer, Dryer, Dishwasher, Free-Standing Range
Legal description
CITY:FOSTER SEC/TWN/RNG/MER:SEC 00 TWN 13S RNG 02E 13S02E0000
Walk Score® data provided by Walk Score