/
$785,000
140days on marketSold$775,000 · January 21, 2026
$785,000
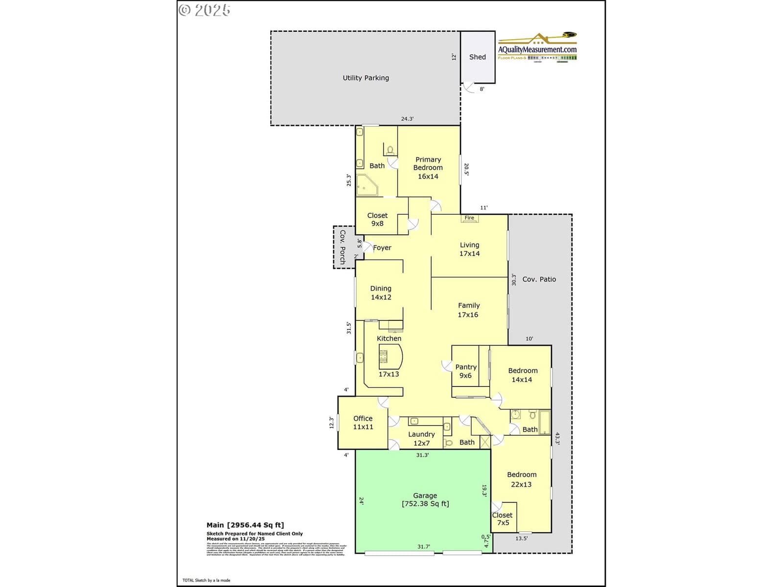
This gorgeous and spacious one level home in desirable McNary neighborhood is looking for new owners. Step through the front door and admire the hardwood floors that lead you into the home. The updated gourmet kitchen features a chef's island with gas stove & down draft vent, granite countertops, built-in microwave and oven, walk-in pantry and a skylight. The formal dining room is the perfect place for entertaining. The private primary bedroom features an updated bathroom with huge walk-in shower, dual sinks and walk-in closet. The other bedrooms and office are located at the opposite end of the house. Cozy up to the gas fireplace in the formal living room, or relax in the family room with sliders that lead onto the covered patio and fully fenced backyard. There's even a central vacuum system! The 3-car garage completes this exquisite home with finished epoxy floors and shelving. Don't miss the gated and covered RV parking along with a sturdy tool shed. Conveniently located to shopping, schools, and transit, this is the perfect house! Dues are $325 per year and cover open space landscaping
Extras & features
Oven, Gas Water Heater, Dishwasher, Down Draft, Microwave
Legal description
SUBDIVISION MCNARY MEADOWS LT 1 3751
Walk Score data provided by Walk Score®