/
$35,000
150days on marketSold$38,500 · March 2, 2026
$35,000
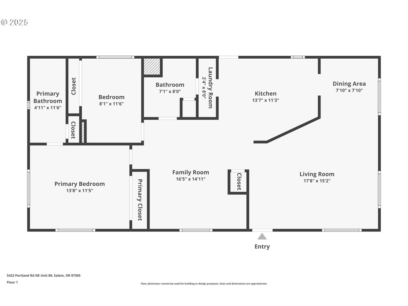
VERY MOTIVATED SELLER!!!! - Welcome to your new home! A well-maintained 2-bed, 2-bath home located in the desirable 55+ Arrowhead Mobile Home Park. It is spacious at 1,152 sq ft, it offers comfortable single-level living with a bright living room, formal dining area with a built-in hutch, and an additional bonus space perfect for crafts, an office, or a TV room. The primary suite includes its own large full bathroom. And the home comes with all the appliances. Recent improvements include newer vinyl windows with new trim, newer roof, updated bathroom fans, an AC unit about 5 years old, a water heater just 3 years old, and extensive plumbing updates. The home also comes with lots of paperwork/documentation for the appliances and work that was done.Outside, the property sits on one of the larger lots in the community, with 4 parking spaces and a large yard with plenty of space for garden beds. It has a sidewalk that walks all the way around the property, and again it offers four parking spots, including covered parking. Two storage sheds provide excellent space for tools or hobbies. The space rent of $1048.84 includes water, sewer, and garbage, adding convenience and value. The park also has a club house, event space, kitchen, lounge, RV storage, and is pet friendly.This home is located close to I-5, shopping, and services, it is an easy, low-maintenance lifestyle in a quiet and friendly 55+ community. Move-in ready with important updates already completed—this is a fantastic place to call home.
Extras & features
Dishwasher, Disposal
Legal description
ARROWHEAD M.H.P., SPACE #56, MS SERIAL # 24x522ck2ms, X # X00
Walk Score® data provided by Walk Score