/
$614,900
74days on marketSold$625,000 · February 14, 2026
$614,900
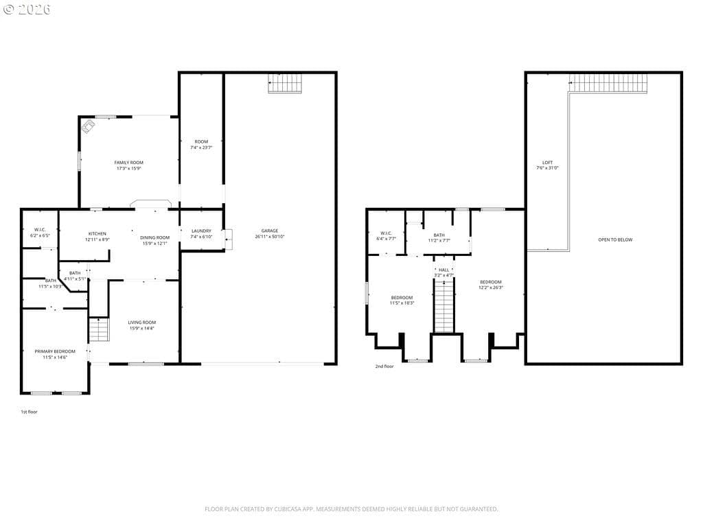
This lovely home features primary bedroom on the main, with two additional bedroom upstairs with a Jack and Jill bathroom. The exterior is a charming and spacious design, complemented by low maintenance landscaping and an ample driveway as well as a huge attached shop. This property backs to private green space. Inside, the home offers an abundance of natural light and a versatile layout with updated flooring throughout. The kitchen is equipped with ample cabinetry, providing ample storage space and updated appliances. The living areas are well-proportioned, creating a comfortable and welcoming atmosphere. A fireplace adds a cozy ambiance, while the covered patio and landscaped yard provide opportunities for outdoor enjoyment. The home also features a large attached shop, perfect for a variety of uses. Recent updates include fresh interior paint, a newer roof, HVAC system, water heater, and including solar power for a low electric bill, ensuring both comfort and efficiency. Additionally, the property offers RV parking and storage, making it ideal for those with recreational vehicles.
Extras & features
Gas Water Heater, Washer, Dryer, Dishwasher, Free-Standing Range, Free-Standing Refrigerator, Microwave
Legal description
LOT 2 SP 1-67 .24A FOR ASSESSOR USE ONLY PTN DODD DLC LYING WIIN
Walk Score® data provided by Walk Score