/
$259,000
89days on marketSold$259,000 · January 26, 2026
$259,000
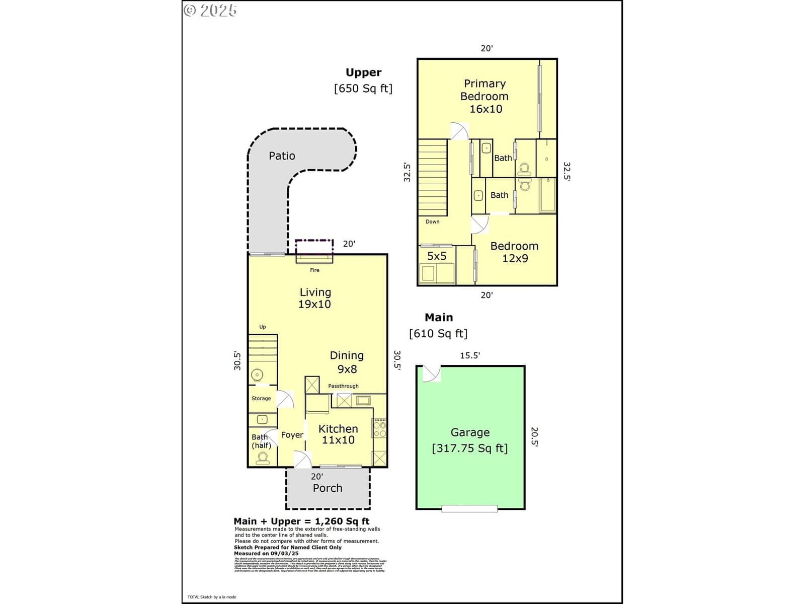
Light-filled Mediterranean style condo featuring two private courtyard patios that evoke the feel of a European villa. The enclosed backyard is a lush retreat with a Japanese Maple and a Redbud Forest Pansy tree creating a green oasis. Inside, the spacious living and dining area is filled with natural lightfrom large picture windows and warmed by a cozy gas fireplace. The kitchen, remodeled in 2018, offers a newer cooktop, oven, dishwasher, and garbage disposal. Upstairs, both bedrooms include beautifully remodeled bathrooms, complemented by new carpet and fresh interior paint throughout. Additional highlights include a 1-car garage and a new roof and gutters in 2024 and new exterior paint 2025. HOA amenities cover water, sewer, garbage, clubhouse access, exterior maintenance, beautifully maintained grounds, and ample guest parking.
Extras & features
Oven, Washer, Dryer, Cooktop, Dishwasher, Disposal, Free-Standing Refrigerator
Legal description
NESTANI-A GRECIAN VILLA CONDOMINIUM, LOT 31-5
Building amenities
Walk Score® data provided by Walk Score