/
$1,250,000
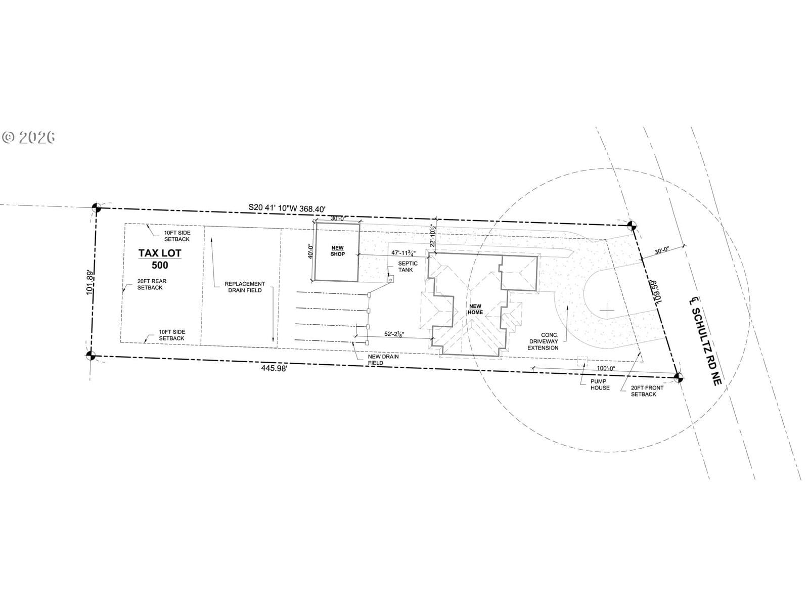
20days on market*** AMAZING HIGH END NEW CONSTRUCTION ON ACREAGE *** Frank Lloyd Wright inspired Prairie Ranch with a sprawling 3,136 square feet of ONE LEVEL LIVING! Soaring ceilings in grand foyer and living room, GOURMET KITCHEN with Bosch appliances and butler's pantry, 4 beds PLUS office and 3 baths, attention to detail, fine finishes, a 40x30 shop, and plenty of paved driveway and parking. Located around the corner from Oregon's oldest continuously operating retail establishment, the famous BUTTEVILLE STORE, this IDEAL LOCATION is between Portland and Salem with great I-5 access. This is proposed construction, contact your agent for pictures of homes with examples of similar finishes. Builder open to buyer selecting options and potential customization. Hurry now! This is an amazing deal in an amazing location and won't last!!!
Extras & features
Dishwasher, Free-Standing Range, Microwave, Range Hood
Legal description
1 Acre
$1,250,000
Walk Score data provided by Walk Score®