/
$344,900
60days on marketSold$349,900 · March 2, 2026
$344,900
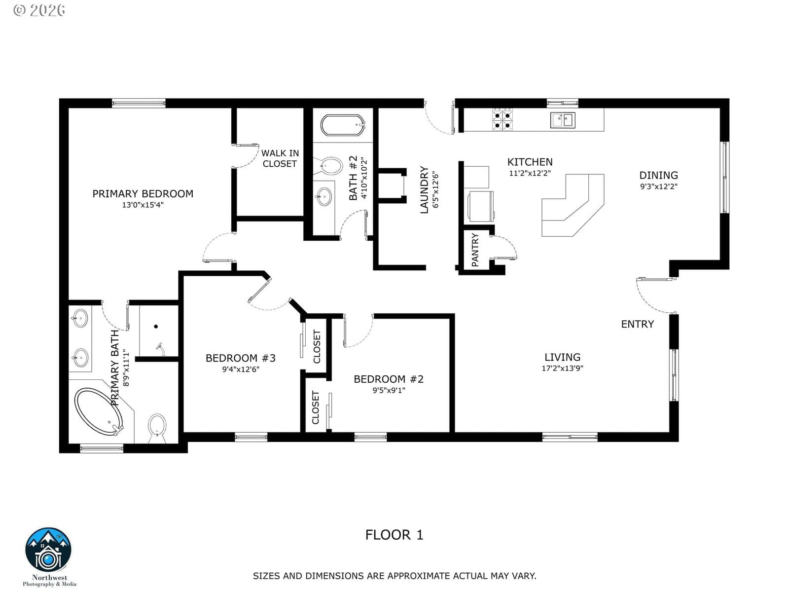
Affordable new home! This 3 bedroom, 2 bath home with it's adorable front covered porch has just been completed & is now move-in ready! The spacious floor plan will delight you with its large open great room and so many features! The kitchen has recessed lighting, a nice pantry and a great breakfast bar for a quick bite and extra counter space. The stainless steel appliances include a free standing refrigerator with water & ice in the door, a smooth top range and a built-in dishwasher. The primary has a walk-in closet and the attached bath double sinks a shower and a soaking tub. EZ Care landscaping. Excellent location with grocery, shopping and bus line nearby. Property tax has not yet been determined. All information deemed reliable but not guaranteed. (* There is also another similar new home for sale next door at 1427 31st. MLS# 757606798)
Extras & features
Dishwasher, Free-Standing Range, Free-Standing Refrigerator
Legal description
17-02-30-34-03501
Walk Score® data provided by Walk Score