/
$449,995
63days on marketSold$451,000 · March 3, 2026
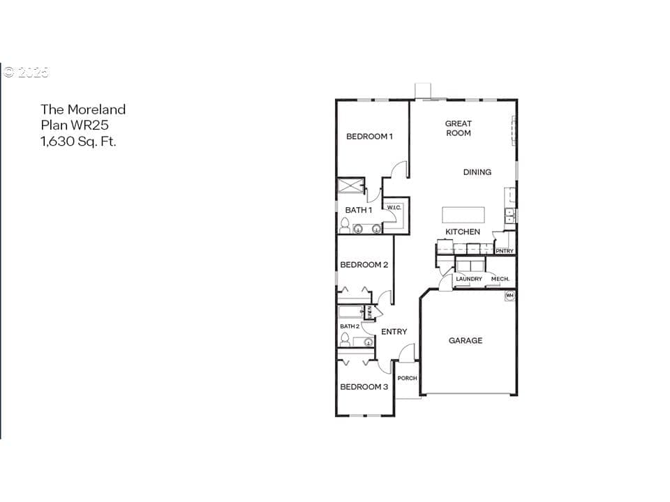
New construction in Salem! This functional one-level floor plan has 1,630 square feet and boasts 3 bedrooms, and 2 bathrooms. The two front bedrooms are connected by a centrally located full bathroom for enhanced convenience. The laundry room is right by the kitchen and has easy access from the garage. The stylish kitchen is completed with stainless-steel appliances, a practical corner pantry, central island, quartz countertops, gas range/oven with a vent hood, inviting you to unleash your culinary creativity. Adjacent to the kitchen, the dining area is effortlessly connected to the expansive living room. This open-concept layout offers tall ceilings and large windows that fill the space with natural light. A centrally located fireplace in the great room adds style and warmth. The primary bedroom offers a walk-in closet, an en suite bathroom with a double vanity. Receive a closing cost credit with use of builder’s preferred lender, reach out for more information. Sales office hours are 9:30am – 4:30pm daily. Be a part of this wonderful community at East Park Village! Photos are representative of plan only and finishes may vary as built.
Extras & features
Disposal, Free-Standing Gas Range, Plumbed For Ice Maker
Legal description
East Park VIllage
Building amenities
$449,995
Walk Score data provided by Walk Score®