/
$350,000
40days on marketSold$365,000 · March 16, 2026
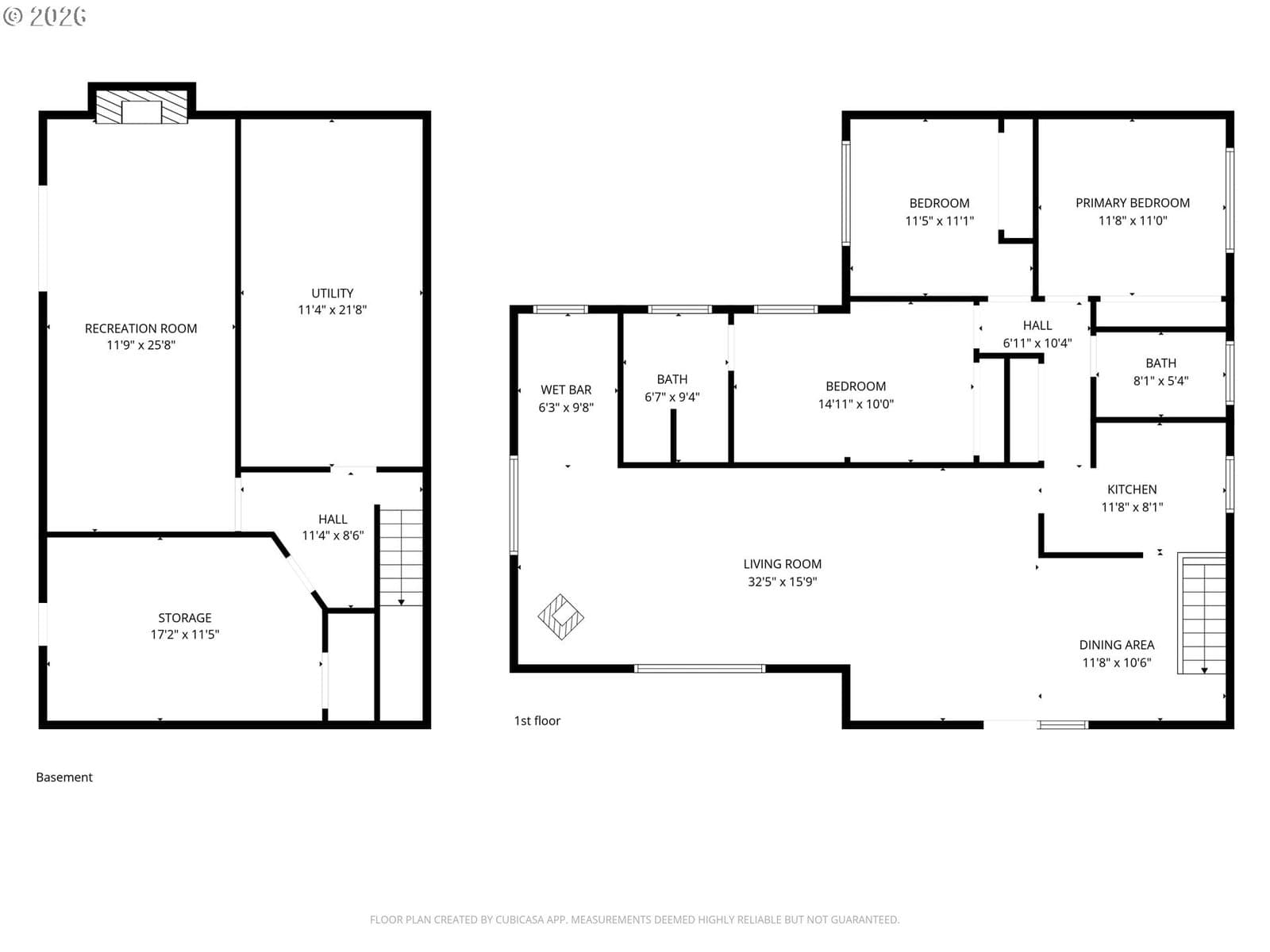
Step back in time with this charming retro-inspired fixer two-story home, lovingly cared for by the same owner for more than 50 years. The main level features a comfortable living room with a cozy pellet stove and wet bar—perfect for relaxing or entertaining. Three bedrooms and two bathrooms are conveniently located on the main floor. Downstairs, the spacious family room includes a second pellet stove and a sliding door that opens to the backyard. Additional highlights include a generous two-car garage and easy access to nearby restaurants and shopping along 82nd Avenue, as well as quick freeway connections and outdoor recreation at Rocky Butte Natural Area. Don’t miss this hidden gem!
Extras & features
Gas Water Heater, Washer, Dryer, Free-Standing Gas Range, Free-Standing Refrigerator
Legal description
ANTHONY ADD, BLOCK 2, LOT 9
$350,000
Walk Score® data provided by Walk Score