/
$390,000
245days on marketSold$385,000 · February 19, 2026
$390,000
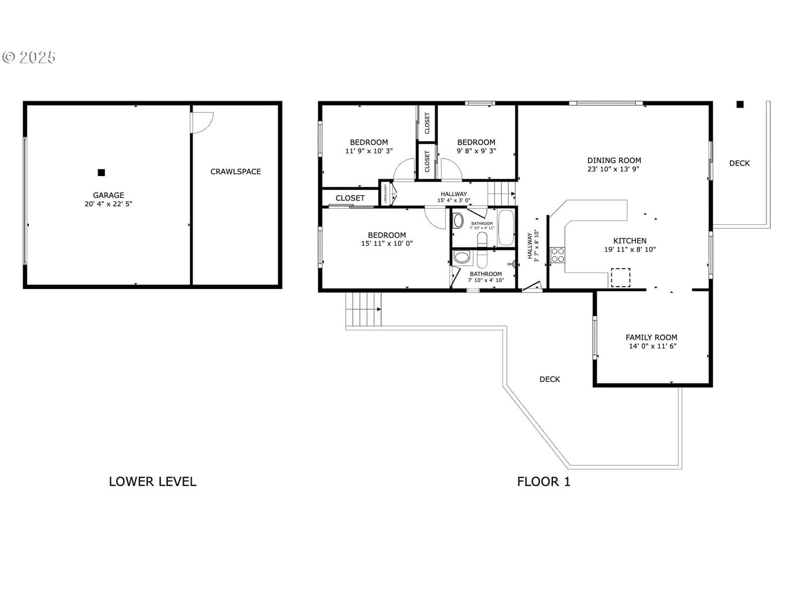
TURNKEY HOME WITH RIVER VIEWS - NOW $390,000! If you’ve been waiting for a move-in-ready option in Kalama, this is it. With over $60,000 in recent upgrades, this home removes the biggest buyer concerns - no major projects, no deferred maintenance, and no surprise expenses.Recent improvements include a new roof, gutters, exterior paint, garage door, some new siding, LVP flooring, fresh interior paint, and brand-new LG appliances. The functional 1.5-level layout offers comfortable separation between living and sleeping spaces, while the front deck provides peaceful Columbia River views and sunset enjoyment. The terraced backyard is ideal for entertaining or low-maintenance outdoor living.Located just ½ mile from downtown Kalama, the waterfront, dining, and shopping, with easy I-5 access for commuters - this home delivers lifestyle, convenience, and long-term value. Interest Rate Buy-Down available with preferred lender!
Extras & features
Dishwasher, Disposal, Free-Standing Range, Free-Standing Refrigerator, Microwave
Legal description
436 (PARKERS) -131 -12 7 -6N -1W INCL PTN S 40 FT VAC MAPLE ST EX
Walk Score data provided by Walk Score®