/
$465,000
182days on marketSold$465,000 · February 12, 2026
$465,000
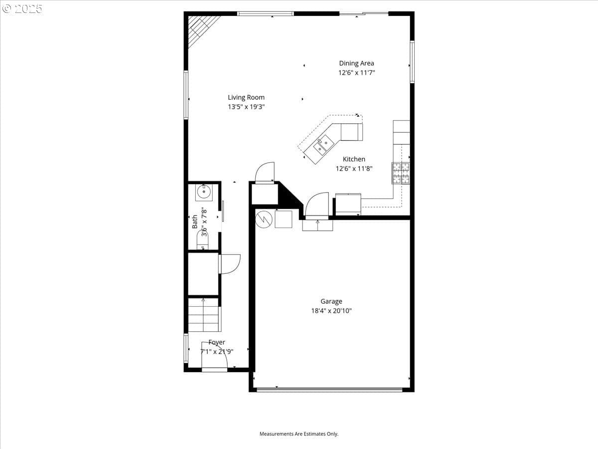
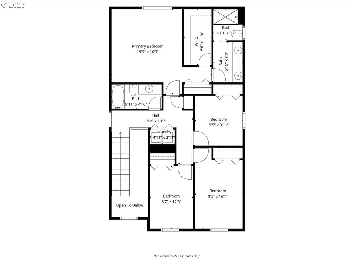
Estate sale with an out-of-state, motivated seller - considering all offers. Darling 4-bedroom, 2.5 bath home! You’ll love the easy flow of this home’s open layout with 9-foot ceilings and laminate floors throughout the main level. The living room has a cozy corner gas fireplace, and the dining area opens to a covered back deck, perfect for year-round grilling or morning coffee. The kitchen offers plenty of workspace with a center island, classic white cabinets, and stainless-steel appliances, including the gas range and dishwasher. A half bath and attached two-car garage complete the main level. Upstairs you'll find four bedrooms, two full baths, and a laundry closet with washer and dryer included. The primary suite feels spacious and bright with vaulted ceilings, dual closets (one walk-in), and a private bath featuring a double-sink vanity and walk-in shower. Outside, the fully fenced backyard and covered deck make it easy to enjoy the outdoors in any season. This one’s move-in ready and ready for it's next chapter. Come take a look!
Extras & features
Gas Water Heater, Washer, Dryer, Dishwasher, Disposal, Free-Standing Gas Range, Plumbed For Ice Maker, Range Hood
Legal description
SUBDIVISION DEER POINTE 3961 LT 3
Walk Score data provided by Walk Score®