/
$550,000
2days on market$550,000
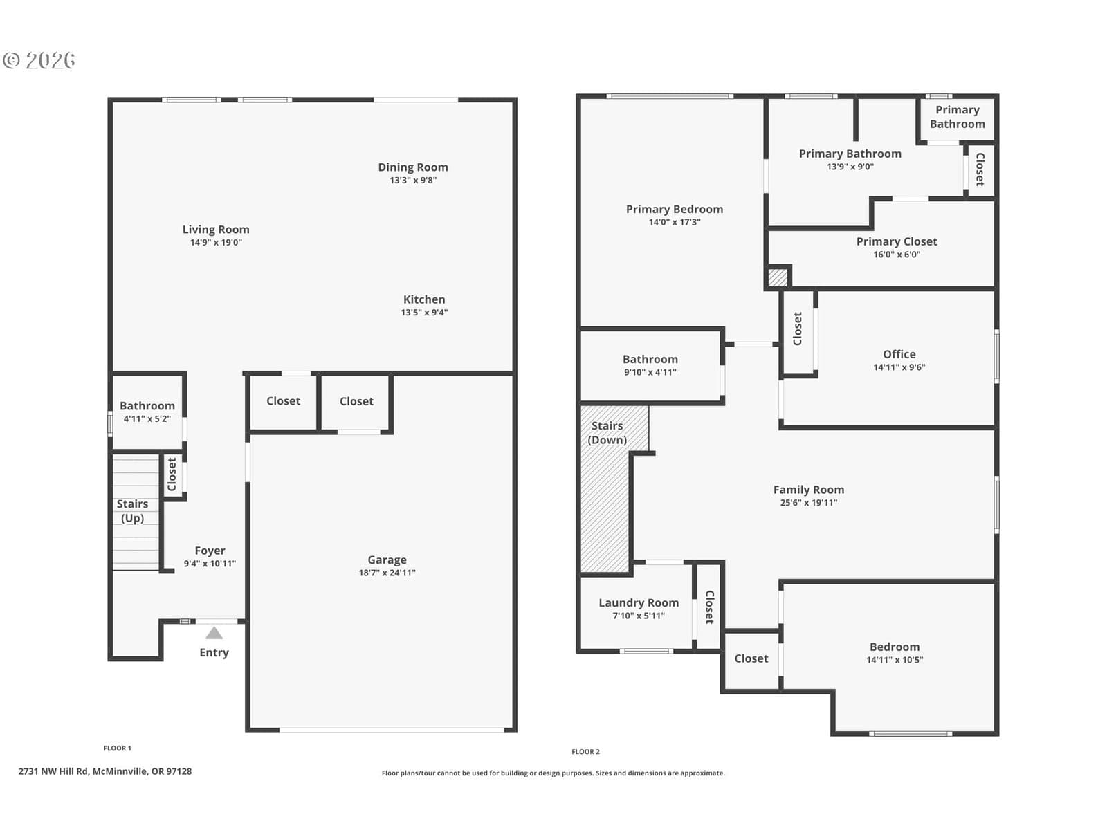
Welcome to 2731 NW Hill Rd in McMinnville—a thoughtfully maintained home offering comfort, convenience, and smart upgrades throughout.Inside, you’ll find a functional layout designed for everyday living.The heart of the home is the gourmet kitchen, featuring a large island that’s perfect for entertaining, cooking, and gathering with family and friends. Just off the main living space, it creates an inviting flow ideal for both everyday living and hosting.The hard-wired ceiling fans provide efficient, year-round comfort. The bedrooms are equipped with sunshades, creating a restful retreat while helping keep the home cool and energy-efficient.The primary suite offers a spacious walk-in closet, providing ample storage and a comfortable, private retreat. Backing up to a green space, the home offers added privacy and a peaceful outdoor setting—ideal for relaxing or entertaining. Spacious back yard and planter boxes—perfect for gardening enthusiasts or anyone looking to grow their own fresh herbs and vegetables.This property also includes a smart-operated sprinkler system, making lawn care simple and convenient with modern technology at your fingertips.Additional perks: washer and dryer and TVs - negotiable.Located in a desirable McMinnville neighborhood, this home combines practical features with everyday comfort—ready for its next owner to enjoy. Come and fall in love with this beauty!
Extras & features
Gas Water Heater, Dishwasher, Disposal, Free-Standing Range, Free-Standing Refrigerator, Microwave, Range Hood
Legal description
LOT 198 BAKER CREEK NORTH NO 5
Building amenities
$569,000
13882 SE Taralon DrHappy Valley, OR 97015
Status: EXP
3 beds · 3 baths · 2,074 SQFT
$600,000
20835 Scappoose Vernonia HwyScappoose, OR 97056
Status: EXP
3 beds · 2 baths · 1,952 SQFT
Walk Score data provided by Walk Score®