/
$515,000
131days on marketSold$500,000 · January 15, 2026
$515,000
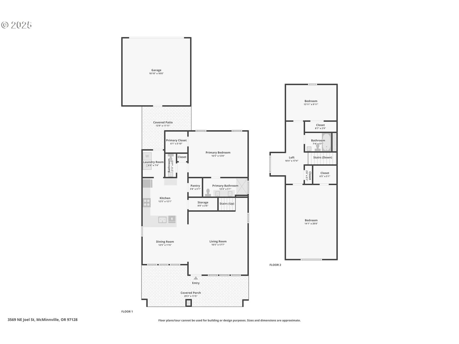
Welcome home to this beautifully appointed 3-bed, 2.5-bath home in the heart of McMinnville, in a great neighborhood, where charm and comfort come together effortlessly. A welcoming covered front porch sets the tone as you step inside to discover airy, high ceilings that create an inviting sense of space. The kitchen is a true highlight, showcasing gleaming quartz countertops, a convenient eating bar, and stainless steel appliances that make everyday living and entertaining a delight. The main-floor primary suite offers ease and accessibility, while the fenced backyard provides a peaceful retreat complete with a patio perfect for outdoor dining or relaxation. This is a home where thoughtful design meets modern convenience—ready to enjoy from the moment you arrive. Come see it today!
Extras & features
Dishwasher, Disposal, Free-Standing Gas Range, Free-Standing Refrigerator
Legal description
LOT 42 IN THE BUNGALOWS AT CHEGWYN VILLAGE II
Walk Score® data provided by Walk Score