/
$679,400
189days on marketSold$674,400 · February 13, 2026
$679,400
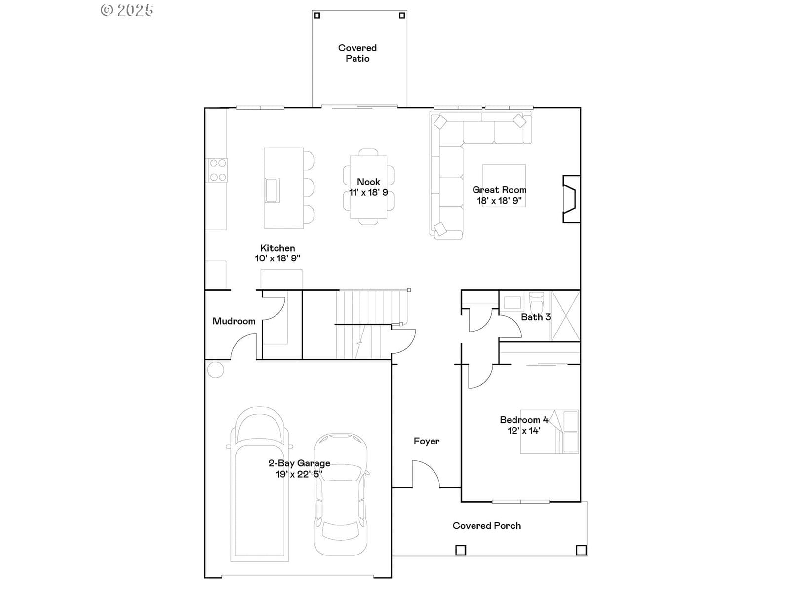
This new construction home is located at Ridgefield Heights, just minutes from kayak access on the river and close to Costco and the new In-N-Out. Community includes a playground, walking trails and basketball court. The Burlington plan offers a spacious layout with a welcoming foyer, open great room, and a bonus room upstairs for added flexibility. The first floor includes a bedroom and full bathroom. Upstairs, the expansive owner’s suite features an oversized walk-in closet and bathroom with separate shower and soaking tub. Interior highlights include quartz countertops with distinct kitchen and bath selections, tile backsplash in kitchen, LVP flooring, Shaker-style cabinetry, and a fireplace that warms the main living area. Other premium features include matte black hardware, a frameless glass shower enclosure in the owner’s suite and wood shelving in closets and the pantry. Back yard is fully fenced with landscaping included. This home also includes an energy efficient HVAC system including A/C, a refrigerator, washer and dryer, and blinds—all at no extra cost! Located on corner homesite #138, this home is expected to be complete in winter 2026. Rendering is artist conception only. Photos are of a similar home, features and finishes will vary.
Extras & features
Oven, Washer, Dryer, Built-In Range, Convection Oven, Dishwasher, Disposal, Free-Standing Refrigerator, Microwave, Plumbed For Ice Maker, Range Hood
Legal description
Lot 138 Ridgefield Hts
Building amenities
Walk Score® data provided by Walk Score