/
$425,000
33days on marketSold$437,500 · March 21, 2026
$425,000
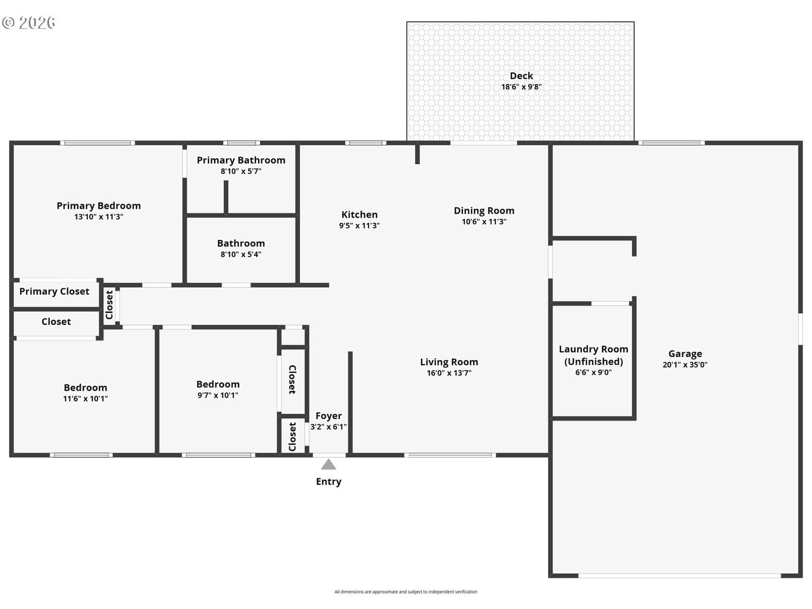
Welcome to this well-maintained one-level ranch home tucked away on a quiet flag lot in the desirable Sunset neighborhood. Offering an open and functional floor plan, this home provides comfortable everyday living with thoughtful updates and generous indoor and outdoor space. The light-filled living area flows seamlessly into the kitchen and dining space, creating an ideal setting for both relaxing and entertaining. The kitchen features an island workspace, durable laminate flooring and all appliances included, making it truly move-in ready. This home offers three bedrooms and two full bathrooms, including a primary suite with its own private bath. With everything conveniently located on one level, the layout offers excellent accessibility and practical living. Major system updates include a composition shingle roof installed in 2017, a high-efficiency forced air furnace and central air conditioning added in 2019, and a new gas hot water heater in 2024, providing peace of mind for years to come. Situated on a spacious 8,426 square foot lot, the property features a fully fenced yard, dedicated dog run and deck perfect for outdoor gatherings, gardening or simply enjoying the quiet setting. There is abundant off-street parking along with an oversized two-car garage offering approximately 844 square feet of space, ideal for storage, hobbies or workshop use. Conveniently located near parks, schools, shopping and commuter routes, this home offers a great combination of comfort, functionality and location. Open house cancelled.
Extras & features
Gas Water Heater, Built-In Range, Dishwasher, Free-Standing Refrigerator, Microwave
Legal description
1343 SUNSET WEST LT 2
Walk Score data provided by Walk Score®