/
$487,900
83days on marketSold$487,900 · February 16, 2026
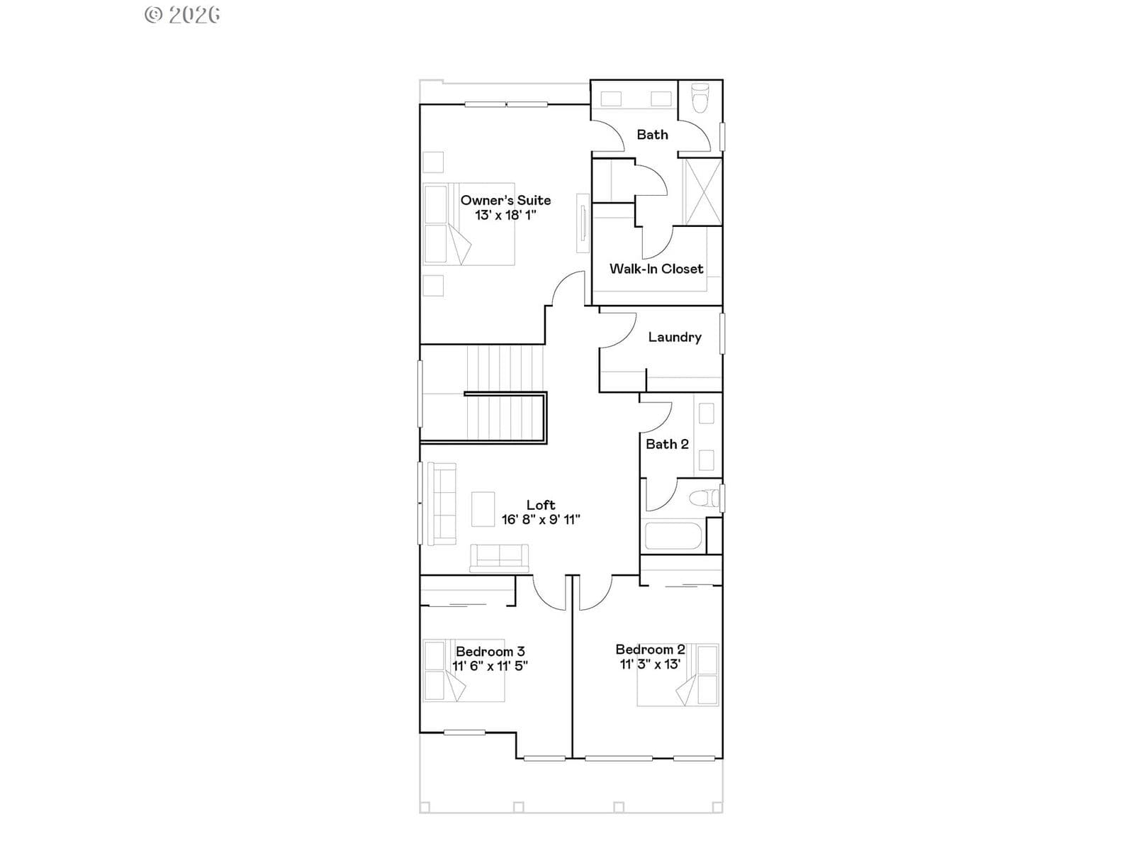
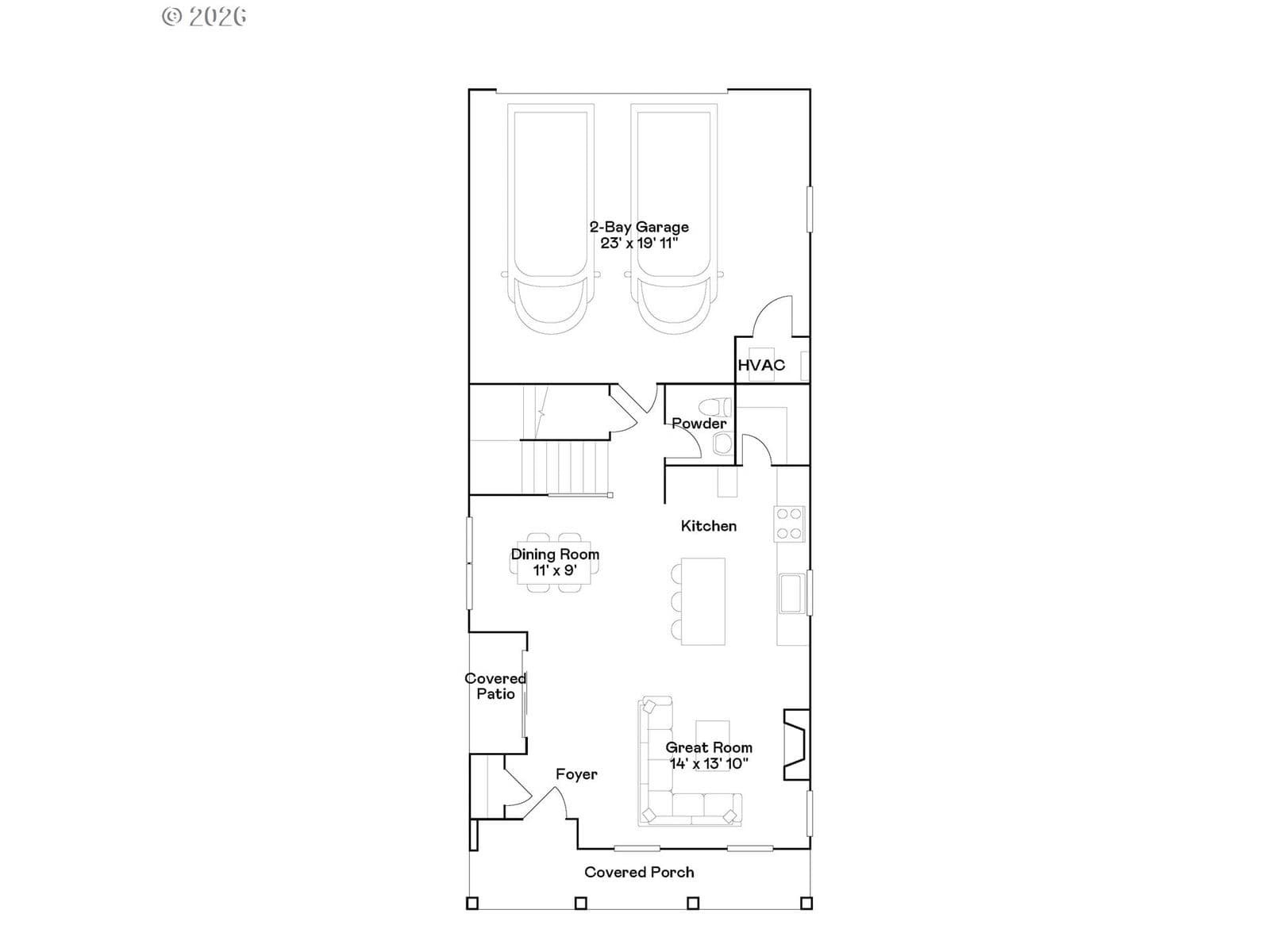
Calloway plan offers a spacious two-story layout with a covered front porch and a covered side patio. The main floor features an open concept design connecting the kitchen, living and dining areas, with a cozy fireplace in the great room creating a warm focal point. Upstairs, a flexible loft is surrounded by three bedrooms, including a primary suite with an en-suite bathroom featuring a double vanity and walk-in closet. EVERYTHING'S INCLUCED means this home also includes central air conditioning, a refrigerator, washer and dryer, and blinds—all at no extra cost! The Brynhill community is loaded with amenities including multiple onsite parks featuring pickleball, basketball, a putting green, a cornhole area, Bocce ball, futsal, playgrounds, and picnic areas. Renderings and sample photos are artist conceptions only. Photos are of similar or model home so features and finishes will vary. Taxes not yet assessed. Below-market rate incentives available when financing with preferred lender. HOMESITE 425
Extras & features
Washer, Dryer, Dishwasher, Disposal, ENERGY STAR Qualified Appliances, Free-Standing Gas Range, Free-Standing Range, Free-Standing Refrigerator, Microwave, Plumbed For Ice Maker
Legal description
$487,900
BRYNHILL NO.5, LOT 425, ACRES 0.06
Building amenities
Walk Score® data provided by Walk Score