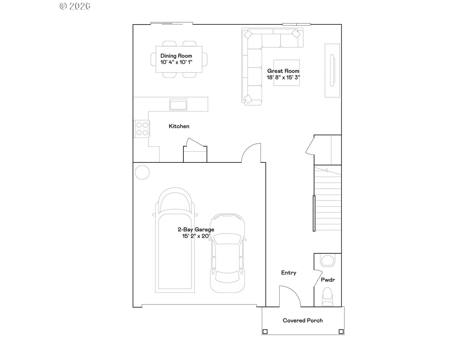
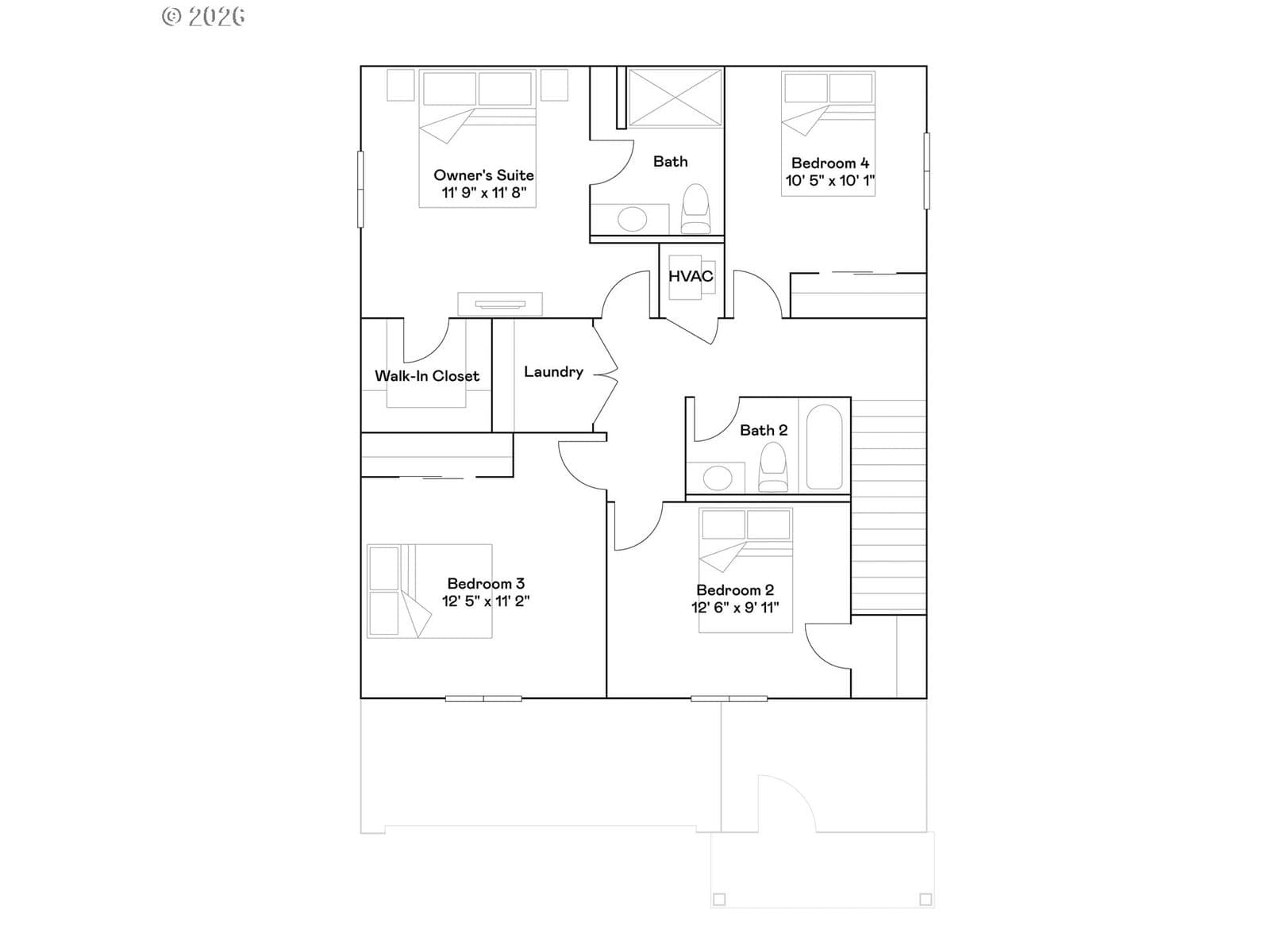
25235 TANGLEWOOD WAY, Veneta, OR, 97487 | Brantley Christianson Real Estate | Brantley Christianson Real Estate