/
$935,000
46days on marketSold$985,000 · March 9, 2026
$935,000
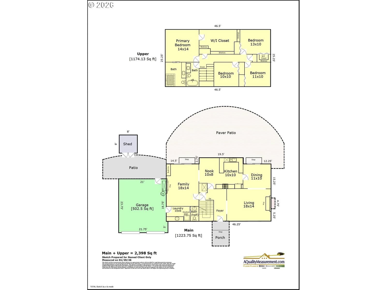
Nestled on a quiet corner lot backing to serene green space in Lake Oswego’s award-winning Mountain Park community, this beautifully remodeled home blends timeless elegance with everyday comfort. Expertly updated by the renowned Neil Kelly, it offers bright, welcoming spaces designed for both entertaining and relaxed living.Sunlight floods the living room through a large bay window, with a gas fireplace anchoring the space for cozy nights at home. The elegant dining room sets the stage for family dinners, holiday celebrations, and gatherings with friends, while sliding doors open to the patio to create a seamless indoor-outdoor flow. The chef’s kitchen features gorgeous granite countertops, abundant wood cabinetry, and a brand-new dishwasher. A large window above the kitchen sink frames views of the backyard, while the charming eating nook invites casual meals backlit by sunshine. The kitchen flows into the family room, where a wood-burning fireplace and sliding doors to the patio create a seamless space for unwinding or hosting friends and family. The upstairs boasts four true bedrooms including a primary suite worthy of envy. The backyard is a private oasis designed for low-maintenance enjoyment. Fully fenced, it features a spacious patio, small lawn, fire pit, and a large storage shed, with direct access to green space for kids or pets to run and play. Known as “Nature’s Neighborhood,” Mountain Park offers miles of scenic trails, parks, and breathtaking viewpoints. Residents also enjoy a remodeled clubhouse, fitness center with personal training and group classes, three pools (therapeutic, lap, and leisure), water aerobics, swim lessons, basketball, tennis and pickleball courts, playgrounds, and a vibrant Kid Zone with camps and rentable event spaces. Just minutes from top-rated Lake Oswego schools and downtown boutiques, restaurants, and entertainment, this home offers a rare opportunity to enjoy the serenity of nature alongside a lively, connected community.
Extras & features
Disposal, Free-Standing Gas Range, Free-Standing Refrigerator, Microwave, Range Hood
Legal description
1416 MOUNTAIN PARK #7 LT 39-A
Building amenities
Walk Score data provided by Walk Score®