/
$175,000
374days on marketSold$175,000 · March 2, 2026
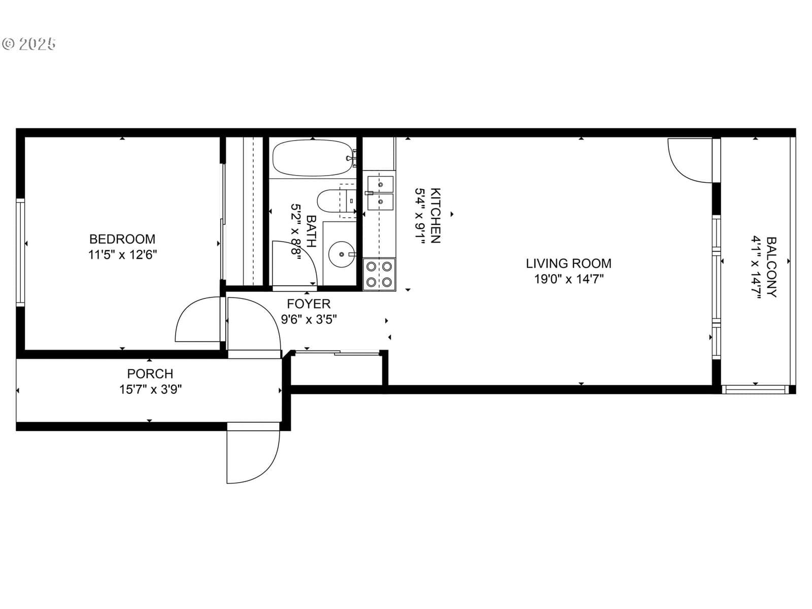
Enjoy beach life: coffee, cocktails, meals on your creekside balcony replete with ocean breezes. Listen to the sea as you drift off to sleep. The beach is just a few feet from your well-furnished condo: beautiful, comfortable pull-out sofa bed in the Living Room, newer, comfortable bed in the separate Bedroom, full bathroom, and small but efficient kitchen. The condo is ready for you! Make the most of the Coastal Neskowin community--Hawk Creek Cafe, Farmers' Market, Art Fair--all await your arrival!
Extras & features
Free-Standing Range, Free-Standing Refrigerator
Legal description
SUBD NAME: NESKOWIN LODGE CONDOMINIUMS BLK NO: UNIT 38 LOT NO: FL 3
$175,000
Building amenities
Walk Score data provided by Walk Score®