/
$605,400
126days on marketSold$605,400 · January 31, 2026
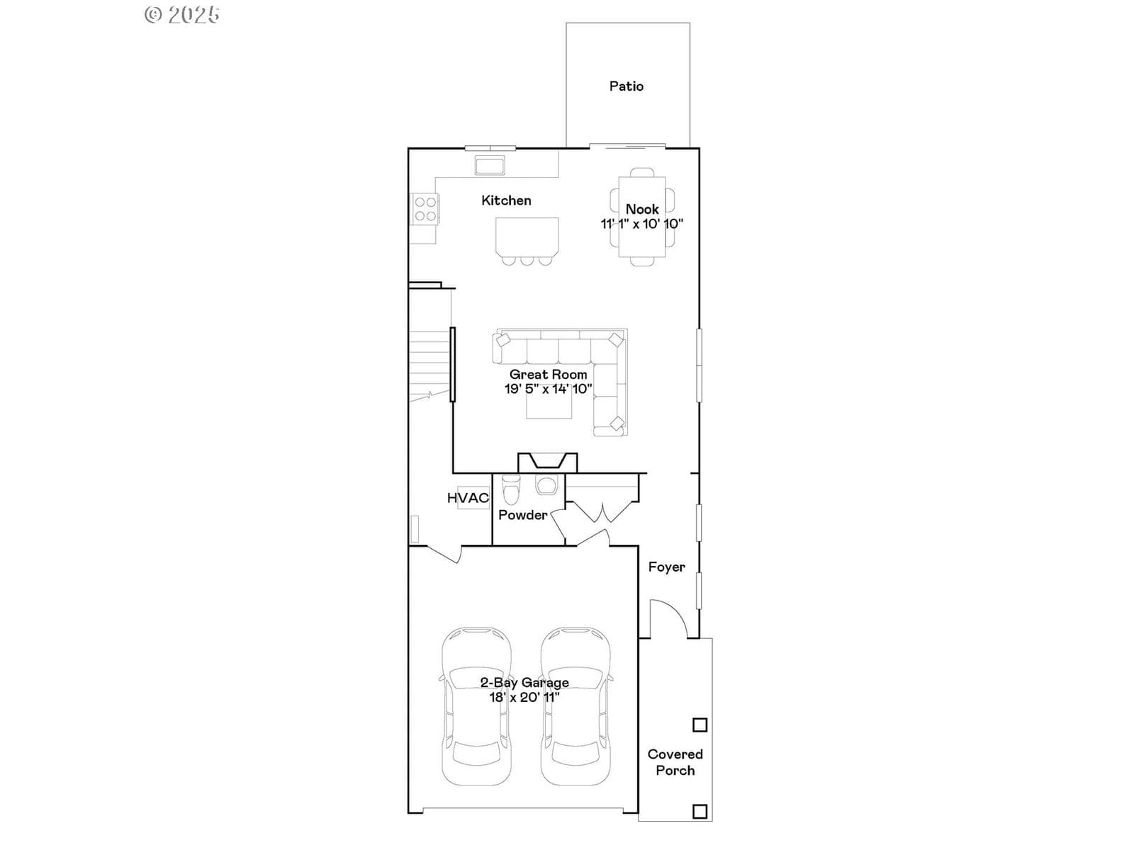
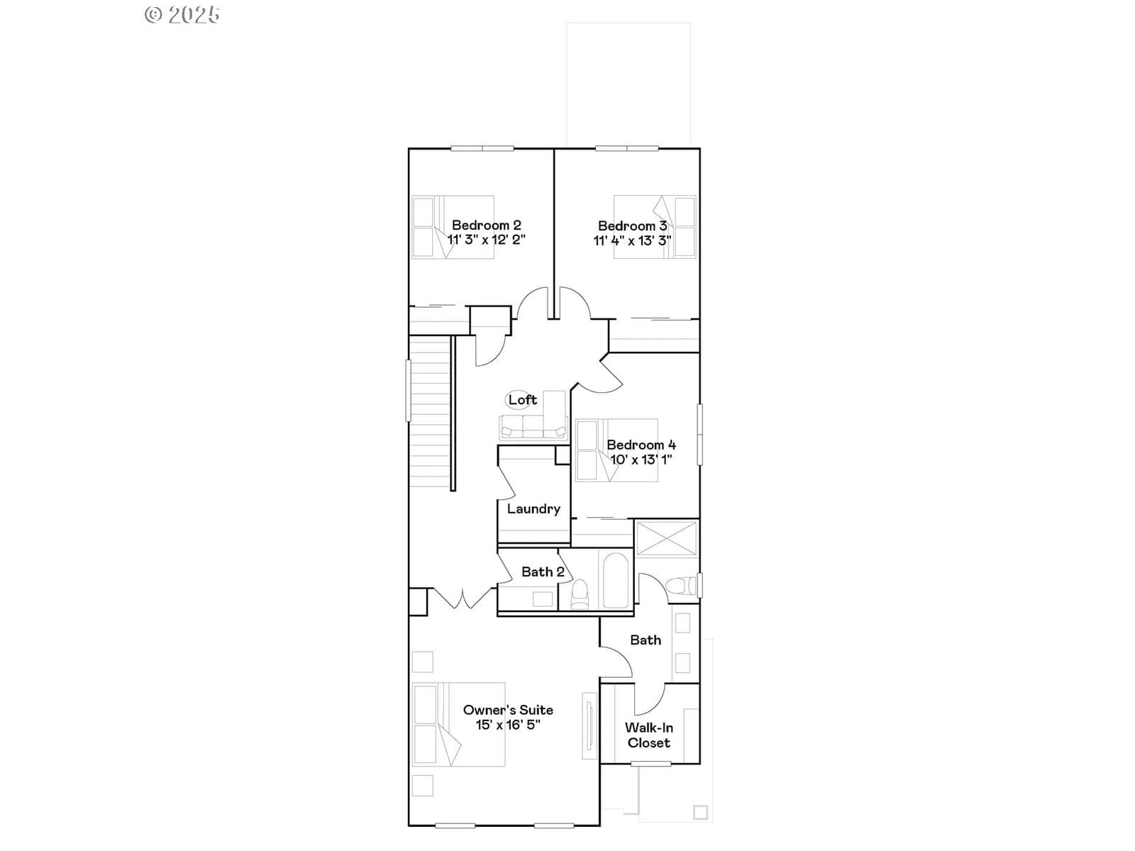
This new construction home in Autumn Sunrise is minutes from I-5, dining, and shopping, and offers access to community amenities including a playground, fire pit, and a basketball court. The Kingston plan presents an inviting two-story design where the great room, dining area, and kitchen connect in an open layout with sliding doors leading to the patio. Upstairs, four bedrooms surround the landing, including a primary suite with an en-suite bath and walk-in closet. Interior highlights include quartz countertops, shaker-style cabinets, a fireplace with floating mantle, two-tone paint, and other luxury features throughout. This home also includes landscaping, fencing, and central air conditioning, plus a refrigerator, washer and dryer, and blinds—all at no extra cost! Located on homesite 208, this home is expected to be complete in February 2026. Rendering is artist conception only. Photos are of a similar home, features and finishes will vary.
Extras & features
Dishwasher, Disposal, Free-Standing Gas Range, Free-Standing Refrigerator, Microwave, Plumbed For Ice Maker
Legal description
Boones Ferry to Norwood Rd Right on 89th Ave
$605,400
Building amenities
Walk Score® data provided by Walk Score