/
$862,000
165days on marketSold$862,000 · February 28, 2026
$862,000
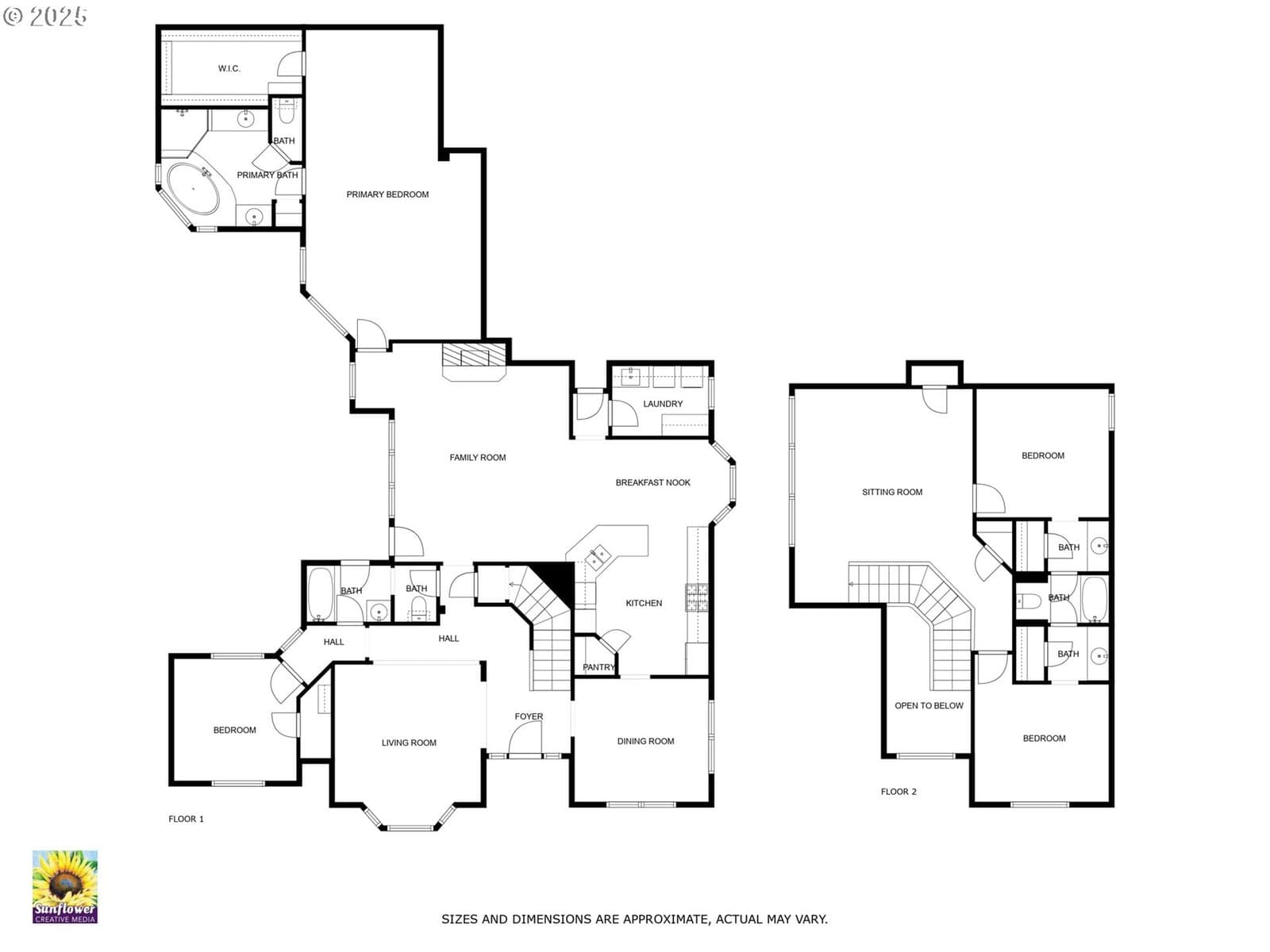
New roof in 2025 and a beautifully refinished hardwood floor in kitchen and nook. Welcome home to your custom 4-bedroom home with 3 full baths and primary suite on main. Great corner lot in Camas, within the Camas High School district. Inviting two-story entry with slate flooring. The huge primary suite includes a jetted soaking tub, dual shower heads in the shower and a large walk-in closet. Excellent opportunity for multi-generational living with a 2nd bedroom also on the main, just steps from a full bathroom. This home has high ceilings throughout first floor. The large gourmet kitchen is equipped with stainless steel appliances including refrigerator, built-in microwave, wall oven, and 5-burner gas cooktop. There is also a food pantry and a generous amount of glide-out shelves. Beautiful bay windows in both the living room and dining nook. Home is pre-plumbed for central vac. Laundry room with included washer and dryer has utility sink, cabinets, and a built-in hanging rod in addition to a large window. The roomy family room features a gas fireplace with a natural slate surround. Large windows throughout entire home let in the natural light. Craftsman trim work throughout the home as well as custom window shutters. Bonus room/loft upstairs plus 2 additional bedrooms joined by a Jack and Jill bath. Covered main floor deck with privacy roll-down shades overlooks the lawn and fully-fenced yard. Great outdoor living and a place to gather. Raised flower beds ready for your square foot gardening. Large attached 3-car side-load garage with high ceilings provide ample space for your storage. Convenient work bench for your projects. Additionally, there's a convenient parking space beside the garage that will fit a small boat or RV.
Extras & features
Oven, Gas Water Heater, Washer, Dryer, Cooktop, Dishwasher, Disposal, Free-Standing Refrigerator, Microwave, Plumbed For Ice Maker, Range Hood
Legal description
SUMMIT OAKS ESTATES PHASE 2 LOT 46 SUB 2000
Building amenities
Walk Score data provided by Walk Score®