/
$625,000
23days on market$625,000
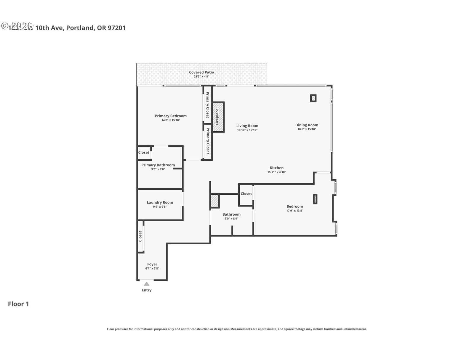
Stunning 7th-floor northwest corner unit with dramatic floor-to-ceiling windows showcasing sweeping city and mountain views. This highly sought after floor plan rarely comes available. Unique features include a gas fireplace, 30' balcony, and 2 real bedrooms on opposite sides of the unit, offering ultimate privacy. The appliances, carpet & HVAC (including central AC) have been recently updated. 2 Deeded parking spots (tandem) right next to elevator and a large storage unit are included. Experience refined urban living in the heart of the Cultural District, complete with 24-hour concierge service. With a Walk Score of 99, world-class dining, shopping, the Art Museum, Park Blocks, streetcar, and Farmer's Market are all just outside your door. This luxury high-rise boasts a strong HOA, a well-equipped fitness room, library with fireplace, conference room, common kitchen and large outdoor terrace with BBQs, lounge furniture and a fire pit. Come experience the Eliot Tower.
Extras & features
Gas Water Heater, Washer, Dryer, Dishwasher, Disposal, Free-Standing Range, Free-Standing Refrigerator, Microwave
Legal description
ELIOT TOWER CONDOMINIUMS, LOT 713
Building amenities
Walk Score data provided by Walk Score®