/
$449,000
46days on marketSold$458,000 · March 8, 2026
$449,000
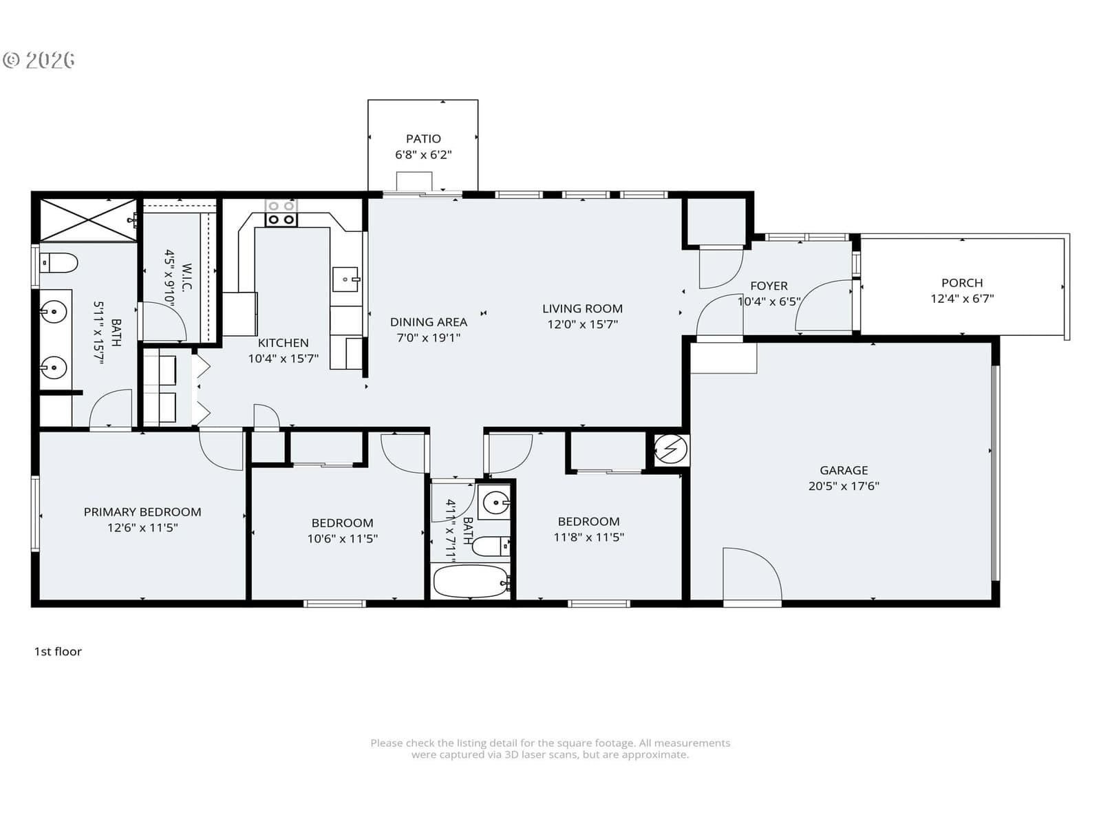
Nestled in the heart of the highly sought-after town of Coburg, this newer home offers the perfect blend of comfort and convenience. Just a few steps from a beautiful park, the charming covered front porch invites you into the tiled entryway. The spacious living room is upgraded with recessed lighting and a ceiling fan, creating a welcoming atmosphere. The dining room and kitchen feature low-maintenance laminate flooring, and custom blinds provide a polished look throughout. The kitchen has stunning quartz countertops, a stylish tile backsplash, stainless steel appliances, and a convenient pantry. The primary bedroom boasts a ceiling fan and a luxurious private bath with a double vanity and a large walk-in closet. Enjoy year-round comfort with forced air heating and air conditioning. The backyard is designed for easy living with low-maintenance landscaping, a patio perfect for entertaining, and a fully fenced perimeter with a side yard entrance to the garage. Sprinklers in both the front and backyard make upkeep a breeze.
Extras & features
Gas Water Heater, Washer, Dryer, Disposal, Free-Standing Range, Free-Standing Refrigerator
Legal description
16-03-33-24-06300
Walk Score® data provided by Walk Score