/
$850,000
165days on marketSold$820,000 · February 17, 2026
$850,000
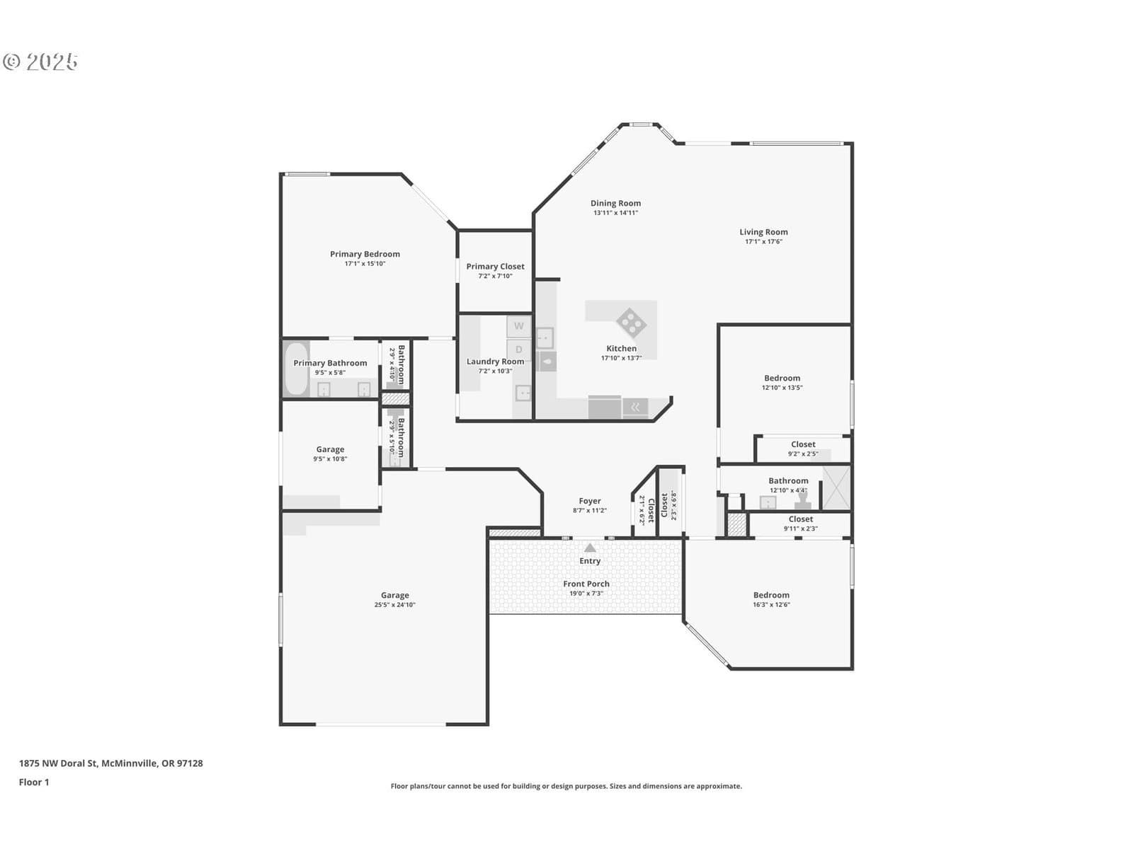
Hurry & see this stunning one level home located beside the Michelbook Golf Course, just a short cart ride to the clubhouse! Main level living at its finest! This one owner home has been meticulously maintained through the years. A brand new HVAC system was installed in 2024, fresh exterior paint in 2024, & a new water heater in 2025. The kitchen has stainless steel appliances, beautiful granite countertops, instant hot water, and new flooring. It opens to a family room w/vaulted cedar panel ceilings, exposed wood beams, & skylights. Owner's suite is equipped with a spacious walk-in closet w/custom built-ins, and a full bathroom that has a soaking tub. Huge laundry room has extensive counter space, a sink, and extensive storage. Relax on the extended back patio, which is mostly covered. Patio has a custom made firepit and hookups for a hot tub. This home's exquisite landscaping has been professionally maintained.For the avid golfer, this home has a third garage bay just for your golf cart! Both garage spaces have epoxy floors.Don't wait on this one, book a tour today!
Extras & features
Oven, Gas Water Heater, Washer, Dryer, Cooktop, Disposal, Down Draft, Free-Standing Refrigerator, Induction Cooktop, Instant Hot Water, Plumbed For Ice Maker
Legal description
LOT 18 - BLOCK 12 IN MICHELBOOK'S FOURTH ADDITION
Building amenities
Walk Score data provided by Walk Score®