/
$469,900
210days on marketSold$469,900 · February 8, 2026
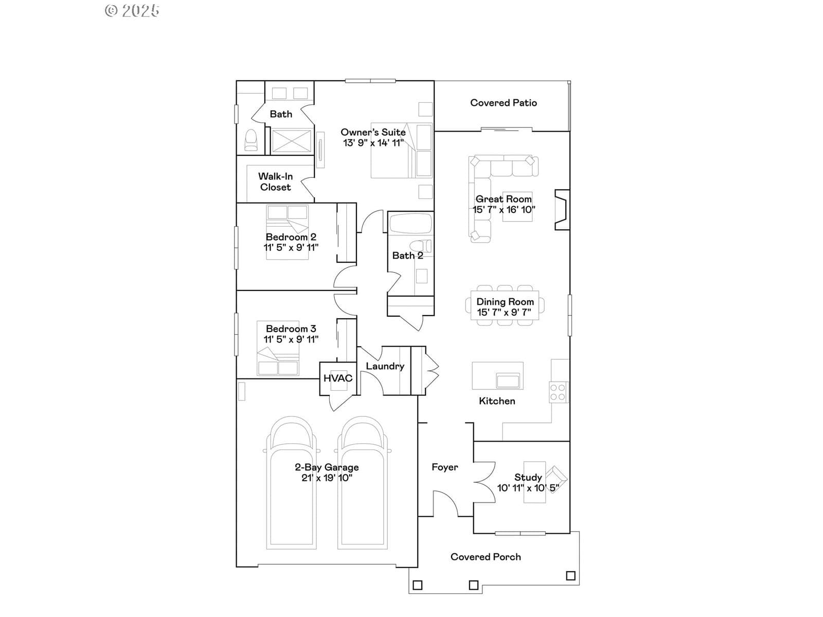
This new construction home is located in Henshaw Farm, with convenient access to Simpson Park, Linn-Benton Community College, downtown historic Albany, and the Golf Club of Oregon, all within a short drive. The Trenton plan is a single-story design with a split layout that places the open kitchen, dining room, and great room together, extending to a back patio for outdoor living. The spacious primary suite offers a private retreat with a primary bath featuring a double vanity and walk-in shower, while two additional bedrooms are positioned nearby. A study near the foyer adds flexibility for an office or hobby room. Interior highlights include quartz countertops, shaker-style cabinets, LVP flooring in the kitchen and entry, LVT in baths, two-tone paint with painted trim, a fireplace with floating mantle, landscaping, and fencing. This home also includes central air conditioning, a refrigerator, washer and dryer, and blinds—all at no extra cost! Located on homesite 145, this home is move in ready. Rendering is artist conception only. Photos are of a similar home, features and finishes will vary. Flex credit/closing cost incentive available when financing with preferred lender! Use towards rate buydown and closing costs.
Extras & features
Gas Water Heater, Washer, Dryer, Built-In Refrigerator, Dishwasher, Disposal, Free-Standing Gas Range, Free-Standing Refrigerator, Microwave, Plumbed For Ice Maker
Legal description
Henshaw Farm , lot 145
$469,900
Building amenities
Walk Score data provided by Walk Score®