/
$465,000
75days on marketSold$480,000 · February 10, 2026
$465,000
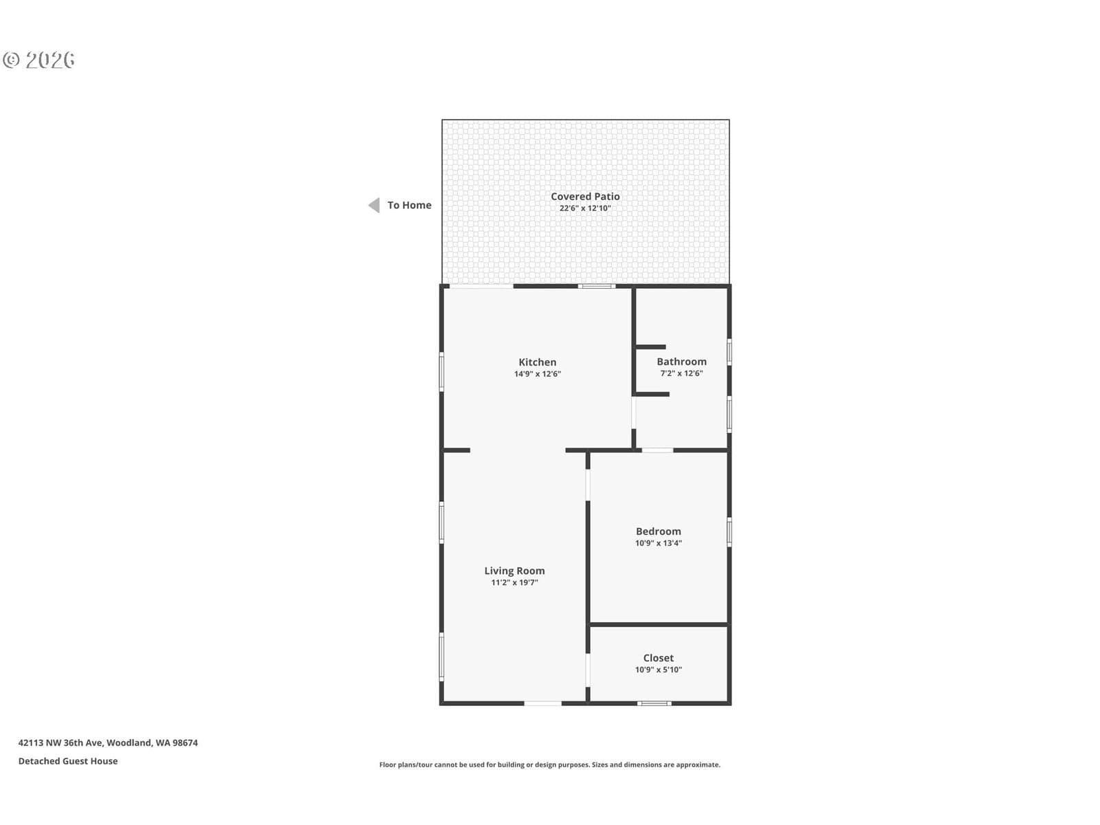
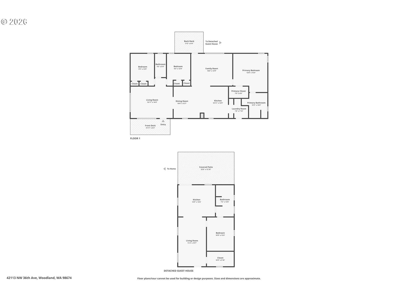
Welcome to this 1.68-acre property, offering a perfect balance of open space and an updated home. The main residence spans 1,512 square feet with 3 bedrooms, 2 updated bathrooms, and two spacious living areas. Inside, you’ll find fresh paint and new wainscoting that complement the new flooring. Both the main home and the additional finished building have been upgraded with all new APEX plumbing for lasting peace of mind. Significant recent improvements also include a new roof with a 30 yr transferable warranty, and two new decks built in 2025—perfect for enjoying the quiet, territorial views and the property's apple, plum, and hazelnut trees.In addition to the main home, the property features a charming finished building with a distinct, cozy cabin feel. The interior is finished with tongue-and-groove throughout, offering a warm and inviting atmosphere. This space includes its own kitchen with granite countertops, living area, bedroom and bathroom, providing incredible flexibility for a guest house, dedicated home office, private hobby studio, or a creative retreat. The grounds are rounded out by a practical tool shed, a two-car metal carport, and dedicated RV parking with a hookup that conveniently connects to the septic system. This is an excellent opportunity for anyone looking for a move-in-ready home with versatile extra space on acreage. Buyer to do due diligence.
Extras & features
Free-Standing Range, Free-Standing Refrigerator
Legal description
#36 #71 JOHNS & BACKMAN HD CL 1.68A FOR ASSESSOR USE ONLY BAAP 17
Walk Score data provided by Walk Score®