/
$501,400
47days on marketSold$479,900 · March 7, 2026
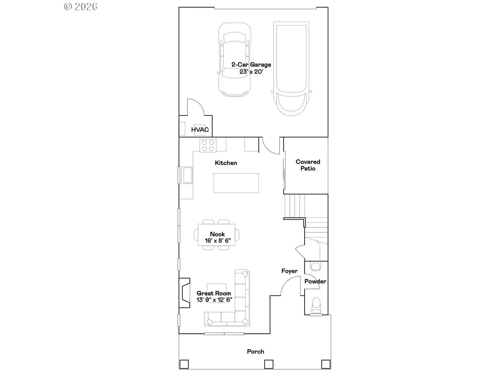
Open-concept new construction with four bedrooms and a spacious owner’s suite in the desirable Brynhill master-planned community of North Plains. The popular Clark plan features a well-designed two-story layout with the great room, kitchen, and dining nook connected in an open-concept design on the main level. Sliding glass doors lead to the covered patio, creating seamless indoor-outdoor living and an ideal space for entertaining. The kitchen is centered around a quartz island with modern finishes and ample workspace for gathering and meal preparation. Upstairs, four bedrooms provide comfortable and flexible living space. The private owner’s suite offers a relaxing retreat with a soaking tub, separate shower, walk-in closet, and attached bathroom. Brynhill is a thoughtfully planned community in North Plains offering scenic views of rolling hills, sports courts, and family-friendly amenities—all while providing convenient access to downtown Portland. A huge covered front porch and side patio add additional outdoor living space and charm. Photos of a similar or model home, but the interior flooring, counter tops & cabinetry colors are as shown. Homesite 448. Move-in ready. Incentives available with the use of our preferred lender!
Extras & features
Gas Water Heater, Washer, Dryer, Dishwasher, Disposal, Free-Standing Gas Range, Free-Standing Refrigerator, Microwave
Legal description
BRYNHILL NO.5, LOT 448, ACRES 0.05
$501,400
Building amenities
Walk Score data provided by Walk Score®