/
$575,000
$575,000
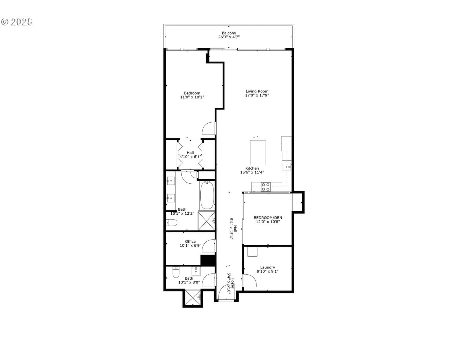
Luxury Living at the LEED Gold certified Eliot Tower. Stunning Views & High-End Finishes in Portland’s Cultural District. Experience elevated urban living in this stunning 14th-floor luxury condo at The Eliot, one of Portland’s most prestigious high-rises. Located in the heart of the Cultural District, this spacious 2-bedroom + den, 2-bath home (1,338 sq. ft.) offers breathtaking west-facing views of the city skyline, rolling hills, vibrant sunsets, and even a glimpse of Mt. St. Helens. The open-concept living space is designed for both elegance and comfort, featuring a chef’s kitchen with high-end appliances, sleek cabinetry, and a large island (including built-in wine fridge)—ideal for cooking and entertaining. The primary suite is a tranquil retreat with an en-suite spa-like bathroom and generous closet space, while the second bedroom and dedicated office/den offer versatility for guests, work, or creative pursuits. Step outside to your expansive 121-square-foot private balcony, perfect for enjoying morning coffee, unwinding at sunset, or entertaining with a view. Enjoy world-class building amenities, including a 24-hour Concierge, fitness center, resident lounge with a full kitchen, library, outdoor common areas, and a meeting room. Secure deeded underground parking is included, and EV charging options coming soon. With a Walk Score of 99, this home is truly in Portland’s arts and culture hub—across the street from the Portland Art Museum with the recent addition of the Rothko Pavilion and cafe. A short distance to theaters, fine dining, coffee shops, shopping, and Portland State University, including the farmers market. If you’re seeking a luxurious, high-quality, and accessible neighborhood lifestyle in one of Portland’s finest condo buildings, this home is a must-see.
Walk Score data provided by Walk Score®