/
$550,000
4days on market$550,000
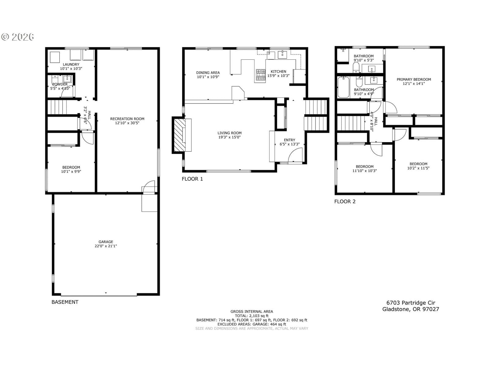
This hilltop 70s retreat has been lovingly cared for by one owner and is on the market for the first time since it was constructed. Feel like you're on vacation in the city with its peaceful territorial views! Step into the sunken living room, where a cozy fireplace anchors the space and invites you to relax. The updated cook's kitchen shines with granite countertops and stainless steel appliances, flowing seamlessly into the dining area with views out to the large deck and beautifully landscaped .21-acre lot. There are four comfortable bedrooms, including a primary with dual closets, an ensuite bath, and views of the trees out its windows. A spacious family room opens directly to the backyard, creating easy indoor-outdoor living. Updates include a newer roof, fresh paint, and recent crawlspace overhaul. Complete with a two-car garage and located in a sought-after neighborhood with a community park and pool, this is a rare opportunity to own a truly special home. HOA dues are assessed annually and vary based on approved community projects- over the last few years they have varied between a total of $400 and $600. The dues cover the maintenance of the the pool, park and community building.
Extras & features
Oven, Washer, Dryer, Built-In Range, Dishwasher, Free-Standing Refrigerator
Legal description
1889 OAKRIDGE #1 PT LT 2 BLK 2
Building amenities
Walk Score® data provided by Walk Score