/
$649,900
95days on marketSold$649,900 · January 19, 2026
$649,900
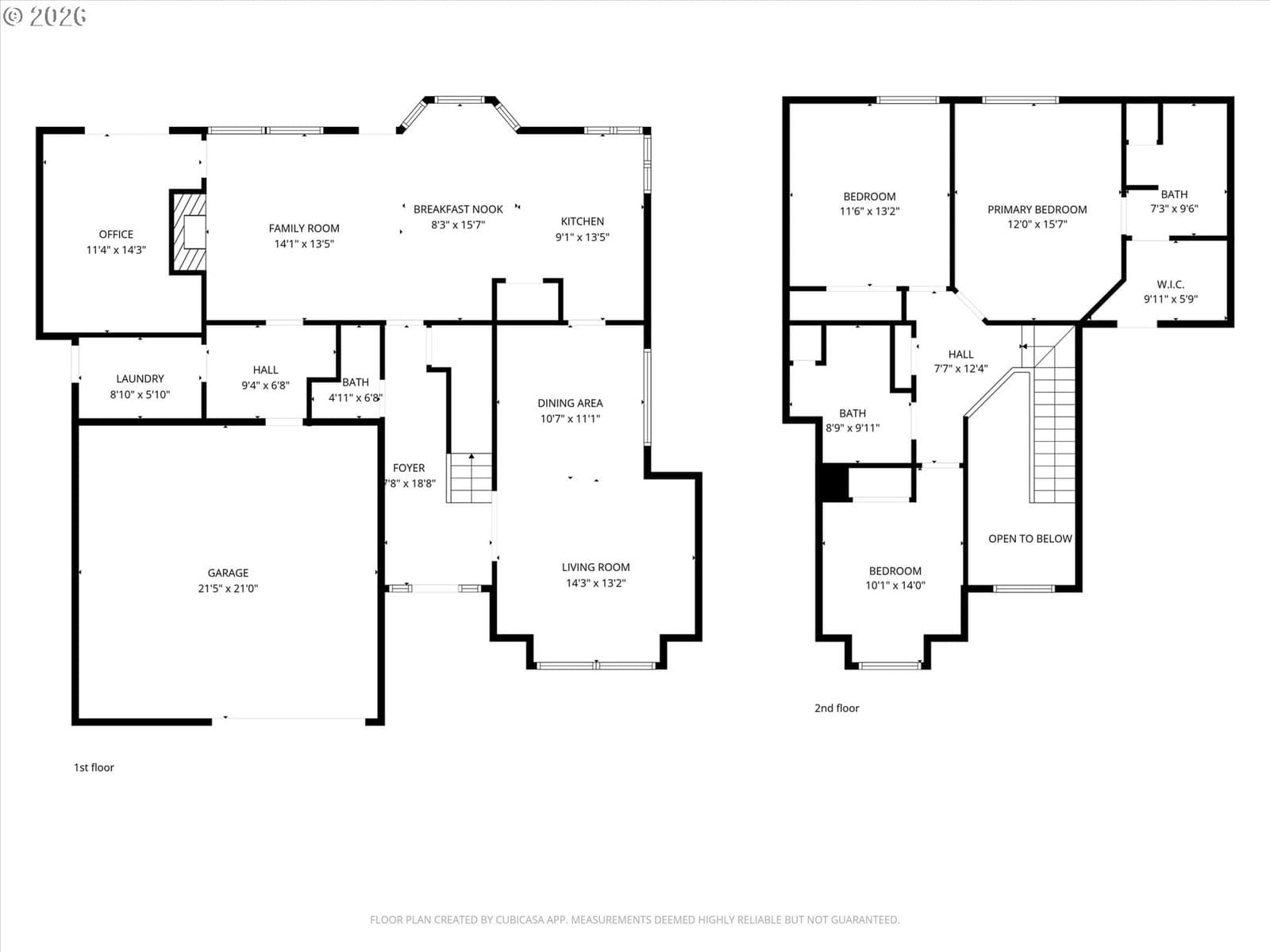
Showcasing timeless architecture, this home features a livable design and a seamless connection between indoor living and outdoor entertaining. Situated on a cul-de-sac in the highly desirable Allenbach Acres neighborhood, this home offers both privacy and comfort. The interior features freshly painted trim and millwork, a vaulted ceiling, new luxury carpet downstairs, hardwood floors, three bedrooms, two and a half bathrooms, and an office with built-ins. Enjoy the sunset from two levels of decks overlooking the backyard, ideal for relaxing evenings or weekend gatherings.Located in a community known for its top-rated schools, the home offers an ideal location with easy access to both Tanasbourne, Bethany Village, and the high-tech corridor. Shopping, dining, coffee shops, brew pubs, golf courses, parks, and trails are all just minutes away. Recent upgrades include interior trim paint, exterior paint (Fall 2025), roof (2015), hot water heater (2025), refrigerator and microwave (2023), Carrier heating and air conditioning (2022), and new Trex decking (2026). Wired for high speed fiber optics/ethernet. You’re going to love living here!
Extras & features
Gas Water Heater, Washer, Dryer, Dishwasher, Disposal, Free-Standing Gas Range, Free-Standing Refrigerator, Microwave
Legal description
ALLENBACH ACRES NO.2, LOT 128, ACRES 0.18
Walk Score data provided by Walk Score®