/
$749,900
167days on marketSold$734,500 · January 18, 2026
$749,900
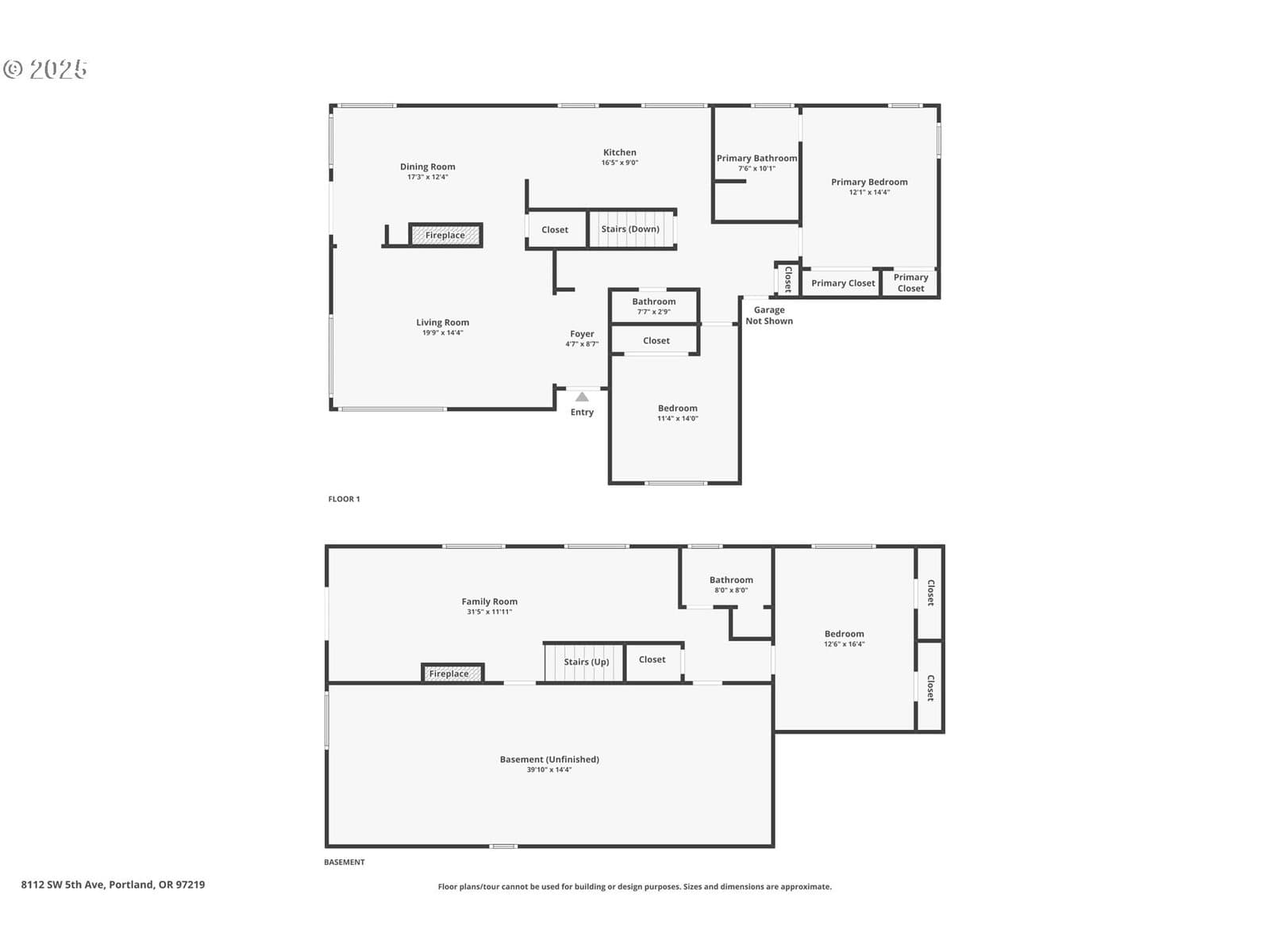
Timeless mid-century design meets elevated modern living in this extraordinary Portland residence. Set on an expansive 10,890 sq ft lot in the desirable Fulton Park/South Burlingame neighborhood, this architectural gem offers sweeping views of Mt. Hood and Mt. St. Helens. Sunlight pours through oversized windows, warming classic hardwoods and illuminating two inviting fireplaces that anchor the home’s sophisticated yet welcoming character. Thoughtfully updated and offering over 2,700 sq ft of comfortable living space, the home features a fully renovated kitchen that opens to the dining area and flows seamlessly into the living room—an ideal layout for both daily living and entertaining. A new powder room and a luxurious primary suite blend beautifully with the home’s original mid-century charm, preserving its character while enhancing modern livability. The generous quarter-acre lot provides exceptional outdoor space for both quiet evenings and lively gatherings, all set along a peaceful tree-lined street with a strong sense of community. Enjoy views of Mt. Hood, Oaks Park fireworks, and quick access to I-5, OHSU, Lewis & Clark College, Multnomah Village, and Tryon Creek State Park. A rare blend of mid-century warmth and modern comfort. Open House - Saturday 1/17 12:00 pm -2:00 pm and Sunday 1/18 12:00 pm - 2:00 pm [Home Energy Score = 5. HES Report at https://rpt.greenbuildingregistry.com/hes/OR10242634]
Extras & features
Gas Water Heater, Washer, Dryer, Convection Oven, Dishwasher, ENERGY STAR Qualified Appliances, Free-Standing Gas Range, Free-Standing Range, Range Hood, Wine Cooler
Legal description
SECTION 21 1S 1E, TL 14800 0.25 ACRES
Walk Score data provided by Walk Score®